Woning Raaigras 2 Zeewolde

Raaigras 2, 3893HK Zeewolde

Ontvang updates voor Derde woonwijk

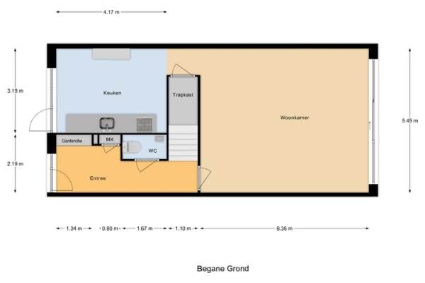
Het adres van deze woning uit 2005 is Raaigras 2 te Zeewolde. Het pand heeft een oppervlakte van 120m² en een perceeloppervlakte van 257m² en heeft 4 kamers kamers waarvan 3 slaapkamers. De geschatte waarde van deze woning is € 485.000.

Bekijk alle woningen in Derde woonwijk

Gegevens van Eengezinswoning, hoekwoning

Bouwjaar
2005
Geschatte waarde
€ 485.000
Oppervlakte
120 m2
Inhoud
380 m3
Aantal kamers
4 kamers
Slaapkamers
3
Badkamers
1 badkamer en 1 apart toilet
Soort bouw
Bestaande bouw
Eigendomssituatie
Volle eigendom
Ligging
Aan rustige weg en in woonwijk
Tuin
Achtertuin en voortuin
Achtertuin
94 m² (11,00 meter diep en 8,50 meter breed)

Voorzieningen in de buurt

Boodschappen2,3 km
Grote supermarkt0,7 km
Cafetaria1,5 km
Restaurant1,2 km
Huisarts1,1 km
Ziekenhuis13,3 km
Kinderdagverblijf0,7 km
BSO0,7 km
Alle voorzieningen in Derde woonwijk

Binnenkijken bij Raaigras 2 te Zeewolde

Meer meldingen in deze omgeving

112 melding
Zaterdag 29-11-2025 om 06:42
Moesson, 3893CW Zeewolde

112 melding
Zaterdag 29-11-2025 om 06:18
Moesson, 3893CW Zeewolde

Binnenkijken bij
Vrijdag 28-11-2025
Zwarte Specht 66, 3893JC Zeewolde

Nieuw bedrijf
November 2025
Grote Haag 29, 3893CL Zeewolde

Nieuw bedrijf
November 2025
Gaffel 11, 3891KC Zeewolde

Nieuw bedrijf
November 2025
Koraal 26, 3893EJ Zeewolde

Binnenkijken bij
Woensdag 26-11-2025
Merelhof 17, 3893JP Zeewolde

Binnenkijken bij
Dinsdag 25-11-2025
Biotoop 90, 3893BL Zeewolde

Direct een e-mail ontvangen bij nieuwe meldingen in deze regio?

Meld je dan GRATIS aan voor de Oozo Alert service voor Derde woonwijk

Instellen

Meer nieuws in Derde woonwijk

Weten hoe eenvoudig het is om af te vallen? Zonder pillen en smeersels en zonder je in het zweet te werken!
Kijk op eenvoudig-afvallen.nl

© 2012 - 2025 OOZO.nl - info@oozo.nl - Gegevens verwijderen? | Disclaimer | Privacy statement