Woning Rozenstraat 39 Zeist

Rozenstraat 39, 3702VM Zeist

Ontvang updates voor Centrumschil-Noord

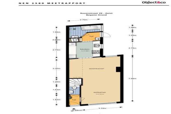
Het adres van deze woning uit 1906 is Rozenstraat 39 te Zeist. Het pand heeft een oppervlakte van 85m² en een perceeloppervlakte van 98m² en heeft 5 kamers kamers waarvan 4 slaapkamers. De geschatte waarde van deze woning is € 350.000.

Bekijk alle woningen in Centrumschil-Noord

Gegevens van Eengezinswoning

Bouwjaar
1906
Geschatte waarde
€ 350.000
Oppervlakte
85 m2
Inhoud
325 m3
Aantal kamers
5 kamers
Slaapkamers
4
Badkamers
1 badkamer en 2 aparte toiletten
Soort bouw
Bestaande bouw
Eigendomssituatie
Volle eigendom
Ligging
In centrum
Tuin
Tuin
Achtertuin
12 m² (6 meter diep en 2 meter breed)

Voorzieningen in de buurt

Boodschappen0,3 km
Grote supermarkt0,4 km
Cafetaria0,3 km
Restaurant0,3 km
Huisarts0,7 km
Ziekenhuis1,8 km
Kinderdagverblijf0,4 km
BSO0,4 km
Alle voorzieningen in Centrumschil-Noord

Binnenkijken bij Rozenstraat 39 te Zeist

Meer meldingen in deze omgeving

Binnenkijken bij
Maandag 6-4-2026
Anne de Vrieslaan 1, 3702GL Zeist

Binnenkijken bij
Donderdag 2-4-2026
Leliestraat 22, 3702CC Zeist

Binnenkijken bij
Woensdag 1-4-2026
Kritzingerlaan 23, 3707TA Zeist

Binnenkijken bij
Vrijdag 27-3-2026
Hortensialaan 21, 3702VD Zeist

Nieuw bedrijf
Maart 2026
Antonlaan 239, 3707KB Zeist

112 melding
Zaterdag 14-3-2026 om 15:01
Dahliastraat, 3702VJ Zeist

112 melding
Zaterdag 14-3-2026 om 15:01
Dahliastraat, 3702VJ Zeist

Nieuw bedrijf
Maart 2026
Tulpstraat 36, 3702VC Zeist

Direct een e-mail ontvangen bij nieuwe meldingen in deze regio?

Meld je dan GRATIS aan voor de Oozo Alert service voor Centrumschil-Noord

Instellen

Meer nieuws in Centrumschil-Noord

Weten hoe eenvoudig het is om af te vallen? Zonder pillen en smeersels en zonder je in het zweet te werken!
Kijk op eenvoudig-afvallen.nl

© 2012 - 2026 OOZO.nl - info@oozo.nl - Gegevens verwijderen? | Disclaimer | Privacy statement