Woning Rozenstraat 9 A 1 Zeist

Rozenstraat 9 A 1, 3702VK Zeist

Ontvang updates voor Centrumschil-Noord

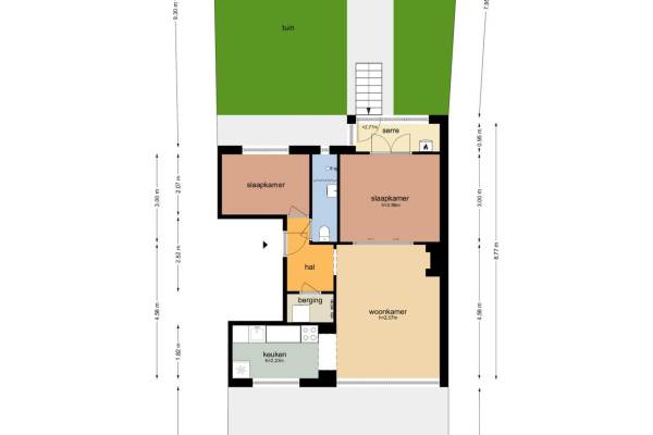
Het adres van deze woning uit 1958 is Rozenstraat 9 A 1 te Zeist. Het pand heeft een oppervlakte van 51m² en heeft 3 kamers kamers waarvan 2 slaapkamers. De geschatte waarde van deze woning is € 239.000.

Bekijk alle woningen in Centrumschil-Noord

Gegevens van Portiekflat (appartement)

Bouwjaar
1958
Geschatte waarde
€ 239.000
Oppervlakte
51 m2
Inhoud
174 m3
Aantal kamers
3 kamers
Slaapkamers
2
Badkamers
1 badkamer
Soort bouw
Bestaande bouw
Eigendomssituatie
Volle eigendom
Ligging
Aan rustige weg, in centrum en in woonwijk
Tuin
Achtertuin
Achtertuin
71 m² (8,9 meter diep en 8 meter breed)

Voorzieningen in de buurt

Boodschappen0,3 km
Grote supermarkt0,4 km
Cafetaria0,3 km
Restaurant0,3 km
Huisarts0,7 km
Ziekenhuis1,8 km
Kinderdagverblijf0,4 km
BSO0,4 km
Alle voorzieningen in Centrumschil-Noord

Binnenkijken bij Rozenstraat 9 A 1 te Zeist

Meer meldingen in deze omgeving

Nieuw bedrijf
Maart 2026
Tulpstraat 36, 3702VC Zeist

Binnenkijken bij
Maandag 9-3-2026
Dwarsweg 9, 3702XA Zeist

Nieuw bedrijf
Februari 2026
Oude Arnhemseweg 63, 3702BB Zeist

Binnenkijken bij
Dinsdag 24-2-2026
Oude Arnhemseweg 105, 3702BC Zeist

Binnenkijken bij
Dinsdag 24-2-2026
Johan de Meesterstraat 4, 3702BX Zeist

Nieuw bedrijf
Februari 2026
Kritzingerlaan 17, 3707TA Zeist

Nieuw bedrijf
Februari 2026
Antonlaan 18712, 3707KA Zeist

Nieuw bedrijf
Februari 2026
Rozenstraat 11, 3702VK Zeist

Direct een e-mail ontvangen bij nieuwe meldingen in deze regio?

Meld je dan GRATIS aan voor de Oozo Alert service voor Centrumschil-Noord

Instellen

Meer nieuws in Centrumschil-Noord

Weten hoe eenvoudig het is om af te vallen? Zonder pillen en smeersels en zonder je in het zweet te werken!
Kijk op eenvoudig-afvallen.nl

© 2012 - 2026 OOZO.nl - info@oozo.nl - Gegevens verwijderen? | Disclaimer | Privacy statement