Woning Lindenlaan 6 Zeist

Lindenlaan 6, 3707ER Zeist

Ontvang updates voor Lyceumkwartier

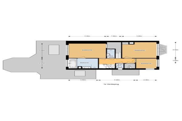
Het adres van deze woning uit 1935 is Lindenlaan 6 te Zeist. Het pand heeft een oppervlakte van 198m² en een perceeloppervlakte van 575m² en heeft 8 kamers kamers waarvan 5 slaapkamers. De geschatte waarde van deze woning is € 975.000.

Bekijk alle woningen in Lyceumkwartier

Gegevens van Villa, 2-onder-1-kapwoning

Bouwjaar
1935
Geschatte waarde
€ 975.000
Oppervlakte
198 m2
Inhoud
726 m3
Aantal kamers
8 kamers
Slaapkamers
5
Badkamers
2 badkamers en 2 aparte toiletten
Soort bouw
Bestaande bouw
Eigendomssituatie
Volle eigendom
Ligging
Aan rustige weg, in bosrijke omgeving en in woonwijk
Tuin
Achtertuin, voortuin en zijtuin
Achtertuin
288 m² (25m diep en 11,5m breed)

Voorzieningen in de buurt

Boodschappen1,0 km
Grote supermarkt1,1 km
Cafetaria1,0 km
Restaurant0,9 km
Huisarts1,3 km
Ziekenhuis1,0 km
Kinderdagverblijf0,5 km
BSO0,4 km
Alle voorzieningen in Lyceumkwartier

Binnenkijken bij Lindenlaan 6 te Zeist

Meer meldingen in deze omgeving

Nieuw bedrijf
November 2025
Platolaan 16, 3707GE Zeist

Nieuw bedrijf
November 2025
Prof. Lorentzlaan 107, 3707HC Zeist

Binnenkijken bij
Dinsdag 25-11-2025
Finsponglaan 5, 3707BT Zeist

112 melding
Vrijdag 21-11-2025 om 18:36
Jagersingel, 3707HL Zeist

Binnenkijken bij
Vrijdag 21-11-2025
Erasmuslaan 13, 3707ZA Zeist

Binnenkijken bij
Vrijdag 21-11-2025
Boulevard 221, 3707BN Zeist

Nieuw bedrijf
November 2025
Verlengde Slotlaan 65, 3707CC Zeist

Binnenkijken bij
Woensdag 19-11-2025
Verlengde Slotlaan 3220, 3707CJ Zeist

Direct een e-mail ontvangen bij nieuwe meldingen in deze regio?

Meld je dan GRATIS aan voor de Oozo Alert service voor Lyceumkwartier

Instellen

Meer nieuws in Lyceumkwartier

Weten hoe eenvoudig het is om af te vallen? Zonder pillen en smeersels en zonder je in het zweet te werken!
Kijk op eenvoudig-afvallen.nl

© 2012 - 2025 OOZO.nl - info@oozo.nl - Gegevens verwijderen? | Disclaimer | Privacy statement