Woning Stein van Malsenstraat 10 Niezijl

Stein van Malsenstraat 10, 9842PT Niezijl

Ontvang updates voor Niezijl

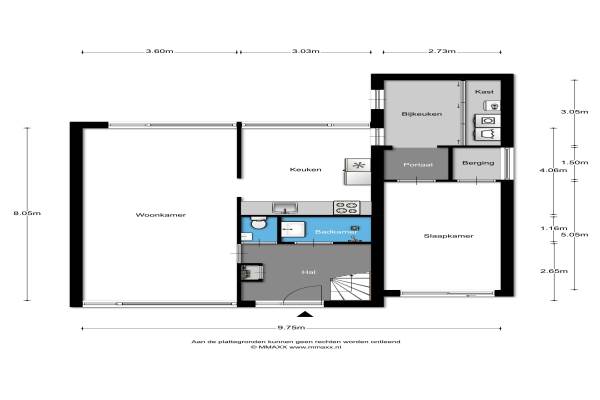
Het adres van deze woning uit 1969 is Stein van Malsenstraat 10 te Niezijl. Het pand heeft een oppervlakte van 116m² en een perceeloppervlakte van 406m² en heeft 6 kamers kamers waarvan 4 slaapkamers. De geschatte waarde van deze woning is € 199.000.

Bekijk alle woningen in Niezijl

Gegevens van Eengezinswoning, vrijstaande woning

Bouwjaar
1969
Geschatte waarde
€ 199.000
Oppervlakte
116 m2
Inhoud
430 m3
Aantal kamers
6 kamers
Slaapkamers
4
Soort bouw
Bestaande bouw
Eigendomssituatie
Volle eigendom
Ligging
Aan rustige weg en in woonwijk

Voorzieningen in de buurt

Binnenkijken bij Stein van Malsenstraat 10 te Niezijl

Meer meldingen in deze omgeving

Binnenkijken bij
Dinsdag 11-11-2025
Hoofdstraat 70, 9842PH Niezijl

Nieuw bedrijf
Oktober 2025
Stein van Malsenstraat 35, 9842PS Niezijl

112 melding
Woensdag 1-10-2025 om 21:17
Hoofdstraat, Niezijl

Binnenkijken bij
Woensdag 24-9-2025
Stein van Malsenstraat 15, 9842PS Niezijl

Binnenkijken bij
Maandag 22-9-2025
Pelmolen 7, 9842PW Niezijl

Nieuw bedrijf
Augustus 2025
Oude Haven 14, 9842PL Niezijl

112 melding
Vrijdag 18-7-2025 om 08:59
Hoofdstraat, Niezijl

Nieuw bedrijf
Juli 2025
Hoofdstraat 99, 9842PE Niezijl

Direct een e-mail ontvangen bij nieuwe meldingen in deze regio?

Meld je dan GRATIS aan voor de Oozo Alert service voor Niezijl

Instellen

Meer nieuws in Niezijl

Weten hoe eenvoudig het is om af te vallen? Zonder pillen en smeersels en zonder je in het zweet te werken!
Kijk op eenvoudig-afvallen.nl

© 2012 - 2025 OOZO.nl - info@oozo.nl - Gegevens verwijderen? | Disclaimer | Privacy statement