Woning Stockholmstraat 52 Zwolle

Stockholmstraat 52, 8017JB Zwolle

Ontvang updates voor Hanzeland

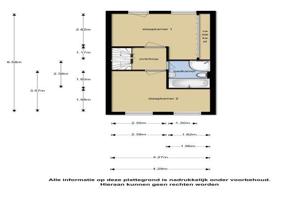
Het adres van deze woning is Stockholmstraat 52 te Zwolle. Het pand heeft 5 kamers kamers waarvan 4 slaapkamers. De geschatte waarde van deze woning is € 270.000.

Bekijk alle woningen in Hanzeland

Gegevens van Eengezinswoning, tussenwoning

Bouwjaar
Voor 1906
Geschatte waarde
€ 270.000
Oppervlakte
0 m2
Inhoud
359 m3
Aantal kamers
5 kamers
Slaapkamers
4
Badkamers
1 badkamer en 1 apart toilet
Soort bouw
Bestaande bouw
Eigendomssituatie
Volle eigendom
Ligging
Aan rustige weg en in woonwijk
Tuin
Achtertuin
Achtertuin
56 m² (12,5m diep en 4,5m breed)

Voorzieningen in de buurt

Boodschappen0,6 km
Grote supermarkt1,5 km
Cafetaria0,4 km
Restaurant0,6 km
Huisarts1,5 km
Ziekenhuis3,7 km
Kinderdagverblijf0,5 km
BSO1,3 km
Alle voorzieningen in Hanzeland

Binnenkijken bij Stockholmstraat 52 te Zwolle

Meer meldingen in deze omgeving

112 melding
Zaterdag 24-1-2026 om 12:36
Lübeckplein, Zwolle

112 melding
Zaterdag 24-1-2026 om 12:36
Lübeckplein, Zwolle

112 melding
Donderdag 22-1-2026 om 07:43
IJsselallee, 8017ZA Zwolle

112 melding
Donderdag 22-1-2026 om 07:43
IJsselallee, 8017ZA Zwolle

112 melding
Donderdag 22-1-2026 om 07:43
IJsselallee, 8017ZA Zwolle

112 melding
Donderdag 22-1-2026 om 07:40
IJsselallee, 8017ZA Zwolle

112 melding
Donderdag 22-1-2026 om 07:40
IJsselallee, 8017ZA Zwolle

112 melding
Donderdag 22-1-2026 om 07:40
IJsselallee, 8017ZA Zwolle

Direct een e-mail ontvangen bij nieuwe meldingen in deze regio?

Meld je dan GRATIS aan voor de Oozo Alert service voor Hanzeland

Instellen

Meer nieuws in Hanzeland

Weten hoe eenvoudig het is om af te vallen? Zonder pillen en smeersels en zonder je in het zweet te werken!
Kijk op eenvoudig-afvallen.nl

© 2012 - 2026 OOZO.nl - info@oozo.nl - Gegevens verwijderen? | Disclaimer | Privacy statement