Woning Ruusbroecstraat 29 Zwolle

Ruusbroecstraat 29, 8022EA Zwolle

Ontvang updates voor Hogenkamp

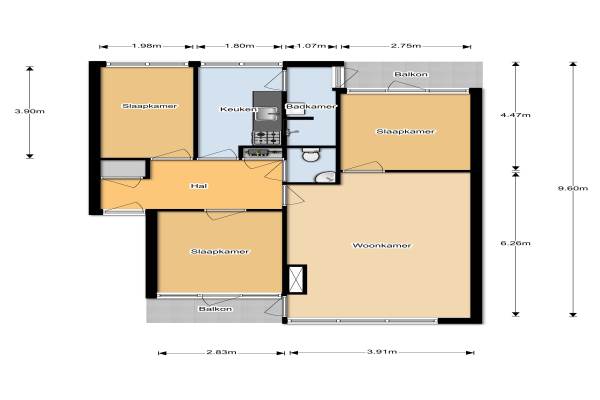
Het adres van deze woning uit 1965 is Ruusbroecstraat 29 te Zwolle. Het pand heeft een oppervlakte van 75m² en heeft 4 kamers kamers waarvan 3 slaapkamers. De geschatte waarde van deze woning is € 145.000.

Bekijk alle woningen in Hogenkamp

Gegevens van Portiekflat (appartement)

Bouwjaar
1965
Geschatte waarde
€ 145.000
Oppervlakte
75 m2
Inhoud
220 m3
Aantal kamers
4 kamers
Slaapkamers
3
Badkamers
1 badkamer en 1 apart toilet
Soort bouw
Bestaande bouw
Eigendomssituatie
Volle eigendom
Ligging
Aan rustige weg, in woonwijk en vrij uitzicht

Voorzieningen in de buurt

Boodschappen0,4 km
Grote supermarkt0,4 km
Cafetaria0,3 km
Restaurant0,7 km
Huisarts0,4 km
Ziekenhuis1,7 km
Kinderdagverblijf0,2 km
BSO0,9 km
Alle voorzieningen in Hogenkamp

Binnenkijken bij Ruusbroecstraat 29 te Zwolle

Meer meldingen in deze omgeving

Nieuw bedrijf
November 2025
Hemerkenstraat 3, 8022BT Zwolle

112 melding
Woensdag 26-11-2025 om 16:25
Hogenkampsweg, Zwolle

Binnenkijken bij
Woensdag 26-11-2025
Anthony Duyckstraat 2, 8022AZ Zwolle

Binnenkijken bij
Vrijdag 21-11-2025
Ruusbroecstraat 13, 8022EA Zwolle

Nieuw bedrijf
November 2025
Van Schoonhovenstraat 33, 8022CA Zwolle

Nieuw bedrijf
November 2025
Ruusbroecstraat 48, 8022EH Zwolle

Nieuw bedrijf
November 2025
Jupiterstraat 73, 8022RJ Zwolle

Binnenkijken bij
Vrijdag 14-11-2025
Ruusbroecstraat 177, 8022EE Zwolle

Direct een e-mail ontvangen bij nieuwe meldingen in deze regio?

Meld je dan GRATIS aan voor de Oozo Alert service voor Hogenkamp

Instellen

Meer nieuws in Hogenkamp

Weten hoe eenvoudig het is om af te vallen? Zonder pillen en smeersels en zonder je in het zweet te werken!
Kijk op eenvoudig-afvallen.nl

© 2012 - 2025 OOZO.nl - info@oozo.nl - Gegevens verwijderen? | Disclaimer | Privacy statement