Woning Mombaerstraat 160 Zwolle

Mombaerstraat 160, 8022RM Zwolle

Ontvang updates voor Hogenkamp

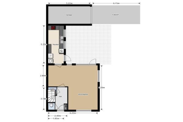
Het adres van deze woning uit 1963 is Mombaerstraat 160 te Zwolle. Het pand heeft een oppervlakte van 115m² en een perceeloppervlakte van 298m² en heeft 5 kamers kamers waarvan 4 slaapkamers. De geschatte waarde van deze woning is € 299.000.

Bekijk alle woningen in Hogenkamp

Gegevens van Eengezinswoning, hoekwoning

Bouwjaar
1963
Geschatte waarde
€ 299.000
Oppervlakte
115 m2
Inhoud
385 m3
Aantal kamers
5 kamers
Slaapkamers
4
Badkamers
1 badkamer en 1 apart toilet
Soort bouw
Bestaande bouw
Eigendomssituatie
Volle eigendom
Ligging
Aan rustige weg, beschutte ligging en in woonwijk
Tuin
Achtertuin, voortuin en zijtuin
Achtertuin
100 m² (10m diep en 10m breed)

Voorzieningen in de buurt

Boodschappen0,4 km
Grote supermarkt0,4 km
Cafetaria0,3 km
Restaurant0,7 km
Huisarts0,4 km
Ziekenhuis1,7 km
Kinderdagverblijf0,2 km
BSO0,9 km
Alle voorzieningen in Hogenkamp

Binnenkijken bij Mombaerstraat 160 te Zwolle

Meer meldingen in deze omgeving

Binnenkijken bij
Donderdag 30-10-2025
Zerboltstraat 2V, 8022RX Zwolle

Binnenkijken bij
Woensdag 29-10-2025
Hogenkampsweg 215, 8022DG Zwolle

Binnenkijken bij
Woensdag 29-10-2025
Hogenkampsweg 42, 8022DJ Zwolle

Binnenkijken bij
Woensdag 29-10-2025
Meppelerstraatweg 17, 8022AE Zwolle

Binnenkijken bij
Woensdag 29-10-2025
Thomas a Kempisstraat 153, 8022AA Zwolle

Nieuw bedrijf
Oktober 2025
Pieter Steynstraat 353, 8022TL Zwolle

112 melding
Maandag 27-10-2025 om 19:13
Hornstraat, Zwolle

Binnenkijken bij
Zondag 19-10-2025
Jan Buschstraat 39, 8022DX Zwolle

Direct een e-mail ontvangen bij nieuwe meldingen in deze regio?

Meld je dan GRATIS aan voor de Oozo Alert service voor Hogenkamp

Instellen

Meer nieuws in Hogenkamp

Weten hoe eenvoudig het is om af te vallen? Zonder pillen en smeersels en zonder je in het zweet te werken!
Kijk op eenvoudig-afvallen.nl

© 2012 - 2025 OOZO.nl - info@oozo.nl - Gegevens verwijderen? | Disclaimer | Privacy statement