Kantoorruimte Jan van Schaffelaarplantsoen 35 Amsterdam

Jan van Schaffelaarplantsoen 35, 1061DM Amsterdam

Ontvang updates voor Kolenkitbuurt Noord

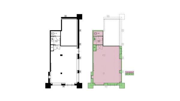
Dit bedrijfspand op het adres Jan van Schaffelaarplantsoen 35 te Amsterdam is geschikt als kantoorruimte. Het betreft hier bestaande bouw uit 1952. Een energielabel is niet verplicht. Het pand beschikt over één of meerdere voorzieningen waaronder toilet, pantry en verwarming. Deze kantoorruimte heeft een oppervlakte van 40 m² en bestaat uit 1 bouwlaag.

Bekijk alle bedrijfspanden in Kolenkitbuurt Noord

Status bedrijfsobject Kantoorruimte Jan van Schaffelaarplantsoen 35 Amsterdam

Huidige status
Beschikbaar
Aangeboden sinds
20 januari 2026
Aanvaarding
In overleg

Eigendom en huurprijs kantoorruimte

Laatst bekende huurprijs
€ 1.075 per maand
Servicekosten
Geen servicekosten bekend

Indeling en inrichting bedrijfspand

Oppervlakte
40 m²
Perceel oppervlakte
40 m²

Voorzieningen in de buurt

Boodschappen0,3 km
Cafetaria0,2 km
Kinderdagverblijf0,2 km
Treinstation2,2 km
Alle voorzieningen in Kolenkitbuurt Noord

Binnenkijken bij Jan van Schaffelaarplantsoen 35 te Amsterdam

Meer meldingen in deze omgeving

112 melding
Donderdag 22-1-2026 om 05:19
Majoor Fransweg, Amsterdam

Nieuw bedrijf
Januari 2026
Akbarstraat 197, 1061DX Amsterdam

Nieuw bedrijf
Januari 2026
Lauernessestraat 9H, 1061ES Amsterdam

Nieuw bedrijf
Januari 2026
Vrouwengelukhof 194, 1061BS Amsterdam

112 melding
Dinsdag 20-1-2026 om 08:35
Akbarstraat, Amsterdam

112 melding
Vrijdag 16-1-2026 om 11:37
Lauernessestraat, Amsterdam

112 melding
Vrijdag 16-1-2026 om 01:12
Akbarstraat, Amsterdam

112 melding
Vrijdag 9-1-2026 om 12:55
Sinjeur Semeynsstraat, Amsterdam

Direct een e-mail ontvangen bij nieuwe meldingen in deze regio?

Meld je dan GRATIS aan voor de Oozo Alert service voor Kolenkitbuurt Noord

Instellen

Meer nieuws in Kolenkitbuurt Noord

Weten hoe eenvoudig het is om af te vallen? Zonder pillen en smeersels en zonder je in het zweet te werken!
Kijk op eenvoudig-afvallen.nl

© 2012 - 2026 OOZO.nl - info@oozo.nl - Gegevens verwijderen? | Disclaimer | Privacy statement