Winkelruimte Meteorenweg 262 Amsterdam

Meteorenweg 262, 1033HL Amsterdam

Ontvang updates voor Tuindorp Oostzaan West

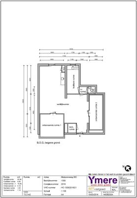
Dit bedrijfspand op het adres Meteorenweg 262 te Amsterdam is geschikt als winkelruimte. Het betreft hier bestaande bouw uit 1959 met energielabel B. Deze winkelruimte heeft een oppervlakte van 73 m² en bestaat uit 1 bouwlaag.

Bekijk alle bedrijfspanden in Tuindorp Oostzaan West

Status bedrijfsobject Winkelruimte Meteorenweg 262 Amsterdam

Huidige status
Beschikbaar
Aangeboden sinds
24 oktober 2025
Aanvaarding
Beschikbaar per 1-11-2025

Eigendom en huurprijs winkelruimte

Laatst bekende huurprijs
€ 1.075 per maand
Servicekosten
€ 25 per maand (21% BTW van toepassing)

Omgeving Winkelruimte Meteorenweg 262 Amsterdam

Bijdrage winkeliersvereniging
Nee
Welstandsklasse
C2

Indeling en inrichting bedrijfspand

Oppervlakte
73 m²
Oppervlakte verkoopvloer
73 m²
Breedte gevel
9,2 m

Voorzieningen in de buurt

Boodschappen0,7 km
Cafetaria0,3 km
Kinderdagverblijf0,6 km
Treinstation5,8 km
Alle voorzieningen in Tuindorp Oostzaan West

Binnenkijken bij Meteorenweg 262 te Amsterdam

Meer meldingen in deze omgeving

112 melding
Donderdag 30-10-2025 om 13:42
Watermanstraat, 1033AN Amsterdam

Nieuw bedrijf
Oktober 2025
Weegschaalhof 18, 1033XP Amsterdam

Nieuw bedrijf
Oktober 2025
Weegschaalhof 18, 1033XP Amsterdam

Nieuw bedrijf
Oktober 2025
Eclipshof 1, 1033XS Amsterdam

112 melding
Zaterdag 25-10-2025 om 12:11
Watermanstraat, 1033AN Amsterdam

112 melding
Zaterdag 25-10-2025 om 07:56
Virgohof, Amsterdam

112 melding
Vrijdag 24-10-2025 om 14:01
Stierstraat, Amsterdam

112 melding
Donderdag 23-10-2025 om 08:48
Watermanstraat, 1033AN Amsterdam

Direct een e-mail ontvangen bij nieuwe meldingen in deze regio?

Meld je dan GRATIS aan voor de Oozo Alert service voor Tuindorp Oostzaan West

Instellen

Meer nieuws in Tuindorp Oostzaan West

Weten hoe eenvoudig het is om af te vallen? Zonder pillen en smeersels en zonder je in het zweet te werken!
Kijk op eenvoudig-afvallen.nl

© 2012 - 2025 OOZO.nl - info@oozo.nl - Gegevens verwijderen? | Disclaimer | Privacy statement