Kantoorruimte Lindenhof 7 Woerden

Lindenhof 7, 3442GT Woerden

Ontvang updates voor Bloemen- en Bomenkwartier

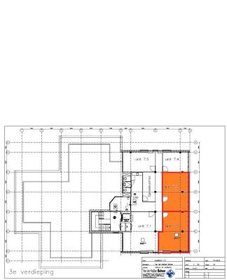
Dit bedrijfspand op het adres Lindenhof 7 te Woerden is geschikt als kantoorruimte. Het betreft hier bestaande bouw uit 1990. Een energielabel is niet beschikbaar. Het pand beschikt over één of meerdere voorzieningen waaronder airconditioning, mechanische ventilatie, inbouwarmaturen, liften, te openen ramen, kabelgoten, systeemplafond, toilet, pantry, verwarming en kamerindeling. Deze kantoorruimte heeft een oppervlakte van 96 m² (in units vanaf 45 m²) en bestaat uit 1 bouwlaag.

Bekijk alle bedrijfspanden in Bloemen- en Bomenkwartier

Status bedrijfsobject Kantoorruimte Lindenhof 7 Woerden

Huidige status
Beschikbaar
Aangeboden sinds
6 oktober 2025
Aanvaarding
Per direct beschikbaar

Eigendom en huurprijs kantoorruimte

Laatst bekende huurprijs
€ 107 per vierkante meter per jaar
Servicekosten
€ 35 per vierkante meter per jaar (21% BTW van toe

Indeling en inrichting bedrijfspand

Oppervlakte
96 m² (in units vanaf 45 m²)

Voorzieningen in de buurt

Boodschappen0,4 km
Cafetaria0,3 km
Kinderdagverblijf0,4 km
Treinstation1,7 km
Alle voorzieningen in Bloemen- en Bomenkwartier

Binnenkijken bij Lindenhof 7 te Woerden

Meer meldingen in deze omgeving

Nieuw bedrijf
Oktober 2025
Hoge Rijndijk 160, 3449HA Woerden

Nieuw bedrijf
Oktober 2025
Hortensiastraat 3, 3442XD Woerden

Nieuw bedrijf
Oktober 2025
Meidoornstraat 44, 3442GC Woerden

Nieuw bedrijf
Oktober 2025
Lindenlaan 35, 3442GD Woerden

112 melding
Dinsdag 7-10-2025 om 12:47
Goudenregenstraat, Woerden

Binnenkijken bij
Woensdag 1-10-2025
Weteringstraat 54, 3442CR Woerden

Binnenkijken bij
Dinsdag 30-9-2025
e Honthorststraat 3, 3442CL Woerden

Binnenkijken bij
Zaterdag 27-9-2025
Prinsenlaan 45H, 3442CB Woerden

Direct een e-mail ontvangen bij nieuwe meldingen in deze regio?

Meld je dan GRATIS aan voor de Oozo Alert service voor Bloemen- en Bomenkwartier

Instellen

Meer nieuws in Bloemen- en Bomenkwartier

Weten hoe eenvoudig het is om af te vallen? Zonder pillen en smeersels en zonder je in het zweet te werken!
Kijk op eenvoudig-afvallen.nl

© 2012 - 2025 OOZO.nl - info@oozo.nl - Gegevens verwijderen? | Disclaimer | Privacy statement