Woning Jan Hanlostraat 9 Almere

Jan Hanlostraat 9, 1321SR Almere

Ontvang updates voor Literatuurwijk

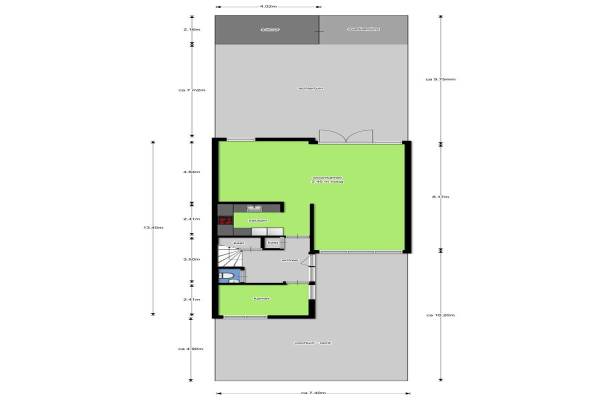
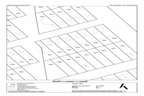
Het adres van deze woning uit 2002 is Jan Hanlostraat 9 te Almere. Het pand heeft een oppervlakte van 147m² en een perceeloppervlakte van 219m² en heeft 6 kamers kamers waarvan 3 slaapkamers. De geschatte waarde van deze woning is € 344.500.

Bekijk alle woningen in Literatuurwijk

Gegevens van Eengezinswoning, tussenwoning

Bouwjaar
2002
Geschatte waarde
€ 344.500
Oppervlakte
147 m2
Inhoud
498 m3
Aantal kamers
6 kamers
Slaapkamers
3
Badkamers
1 badkamer en 1 apart toilet
Soort bouw
Bestaande bouw
Eigendomssituatie
Volle eigendom
Ligging
In woonwijk
Tuin
Achtertuin en voortuin
Achtertuin
70 m² (10m diep en 7m breed)

Voorzieningen in de buurt

Boodschappen0,5 km
Grote supermarkt0,6 km
Cafetaria0,5 km
Restaurant0,5 km
Huisarts0,6 km
Ziekenhuis3,3 km
Kinderdagverblijf0,4 km
BSO0,4 km
Alle voorzieningen in Literatuurwijk

Binnenkijken bij Jan Hanlostraat 9 te Almere

Meer meldingen in deze omgeving

Binnenkijken bij
Zaterdag 17-1-2026
Godfried Bomansstraat 39, 1321GN Almere

112 melding
Vrijdag 16-1-2026 om 20:23
J.J. Slauerhoffstraat, Almere

Binnenkijken bij
Donderdag 15-1-2026
J.J. Slauerhoffstraat 76, 1321RH Almere

112 melding
Donderdag 8-1-2026 om 23:30
Ida Gerhardtstraat, Almere

112 melding
Donderdag 8-1-2026 om 23:26
Ida Gerhardtstraat, Almere

112 melding
Donderdag 8-1-2026 om 23:25
Ida Gerhardtstraat, Almere

112 melding
Donderdag 8-1-2026 om 23:25
Ida Gerhardtstraat, Almere

112 melding
Donderdag 8-1-2026 om 23:25
Ida Gerhardtstraat, Almere

Direct een e-mail ontvangen bij nieuwe meldingen in deze regio?

Meld je dan GRATIS aan voor de Oozo Alert service voor Literatuurwijk

Instellen

Meer nieuws in Literatuurwijk

Weten hoe eenvoudig het is om af te vallen? Zonder pillen en smeersels en zonder je in het zweet te werken!
Kijk op eenvoudig-afvallen.nl

© 2012 - 2026 OOZO.nl - info@oozo.nl - Gegevens verwijderen? | Disclaimer | Privacy statement