Woning Aletta Jacobsstraat 69 Almere

Aletta Jacobsstraat 69, 1349HB Almere

Ontvang updates voor Almere

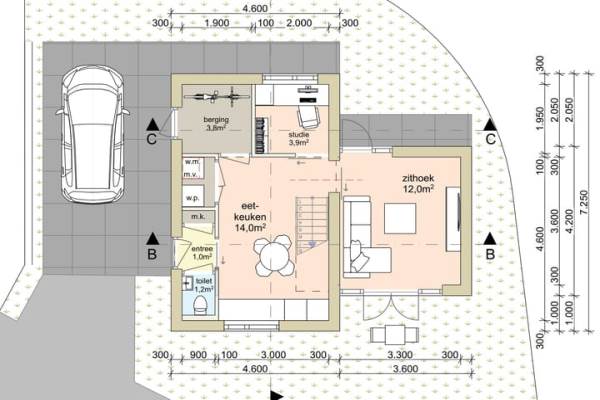
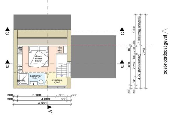
Het adres van deze woning uit 2025 is Aletta Jacobsstraat 69 te Almere. Het pand heeft een oppervlakte van 57m² en een perceeloppervlakte van 215m² en heeft 3 kamers kamers waarvan 1 slaapkamers. De geschatte waarde van deze woning is € 460.000.

Bekijk alle woningen in Almere

Gegevens van Eengezinswoning, vrijstaande woning

Bouwjaar
2025
Geschatte waarde
€ 460.000
Oppervlakte
57 m2
Inhoud
158 m3
Aantal kamers
3 kamers
Slaapkamers
1
Badkamers
1 badkamer
Soort bouw
Nieuwbouw
Eigendomssituatie
Volle eigendom
Ligging
Aan rustige weg, in bosrijke omgeving, in woonwijk en landelijk gelegen
Tuin
Tuin rondom

Voorzieningen in de buurt

Boodschappen0,8 km
Grote supermarkt0,8 km
Cafetaria0,7 km
Restaurant0,8 km
Huisarts0,9 km
Ziekenhuis4,1 km
Kinderdagverblijf0,5 km
BSO0,5 km
Alle voorzieningen in Almere

Binnenkijken bij Aletta Jacobsstraat 69 te Almere

Meer meldingen in deze omgeving

112 melding
Donderdag 1-1-2026 om 12:50
Tuinkersstraat, 1314KX Almere

112 melding
Donderdag 1-1-2026 om 10:29
Duke Ellingtonstraat, Almere

Binnenlands nieuws
Donderdag 1-1-2026
Almere


Binnenlands nieuws
Donderdag 1-1-2026
Almere

112 melding
Donderdag 1-1-2026 om 06:50
Lombokstraat, 1335JR Almere

112 melding
Donderdag 1-1-2026 om 06:35
Linnaeusweg, Almere

Binnenlands nieuws
Donderdag 1-1-2026
Almere

Direct een e-mail ontvangen bij nieuwe meldingen in deze regio?

Meld je dan GRATIS aan voor de Oozo Alert service voor Almere

Instellen

Meer nieuws in Almere

Weten hoe eenvoudig het is om af te vallen? Zonder pillen en smeersels en zonder je in het zweet te werken!
Kijk op eenvoudig-afvallen.nl

© 2012 - 2026 OOZO.nl - info@oozo.nl - Gegevens verwijderen? | Disclaimer | Privacy statement