Woning Wagenaarstraat 379 Amsterdam

Wagenaarstraat 379, 1093CN Amsterdam

Ontvang updates voor Dapperbuurt Noord

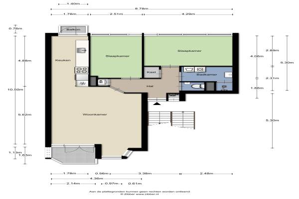
Het adres van deze woning uit 1981 is Wagenaarstraat 379 te Amsterdam. Het pand heeft 3 kamers kamers waarvan 2 slaapkamers. De geschatte waarde van deze woning is € 365.000.

Bekijk alle woningen in Dapperbuurt Noord

Gegevens van Bovenwoning (appartement)

Bouwjaar
1981
Geschatte waarde
€ 365.000
Oppervlakte
0 m2
Inhoud
234 m3
Aantal kamers
3 kamers
Slaapkamers
2
Badkamers
1 badkamer en 1 apart toilet
Soort bouw
Bestaande bouw
Eigendomssituatie
Gemeentelijk eigendom belast met erfpacht (einddatum erfpacht: 15-02-2030)
Ligging
Aan rustige weg en in woonwijk

Voorzieningen in de buurt

Boodschappen0,2 km
Grote supermarkt0,3 km
Cafetaria0,2 km
Restaurant0,1 km
Huisarts0,3 km
Ziekenhuis1,2 km
Kinderdagverblijf0,3 km
BSO0,4 km
Alle voorzieningen in Dapperbuurt Noord

Binnenkijken bij Wagenaarstraat 379 te Amsterdam

Meer meldingen in deze omgeving

112 melding
Zaterdag 7-2-2026 om 06:33
Commelinstraat, Amsterdam

Binnenkijken bij
Zaterdag 7-2-2026
Commelinstraat 50, 1093TV Amsterdam

112 melding
Vrijdag 6-2-2026 om 16:49
Commelinstraat, Amsterdam

Binnenkijken bij
Donderdag 5-2-2026
Commelinstraat 332, 1093TH Amsterdam

Binnenkijken bij
Donderdag 5-2-2026
Pieter Vlamingstraat 362, 1093AE Amsterdam

112 melding
Donderdag 5-2-2026 om 10:58
Von Zesenstraat, Amsterdam

112 melding
Donderdag 5-2-2026 om 10:46
Von Zesenstraat, Amsterdam

Binnenkijken bij
Donderdag 5-2-2026
Commelinstraat 302, 1093VD Amsterdam

Direct een e-mail ontvangen bij nieuwe meldingen in deze regio?

Meld je dan GRATIS aan voor de Oozo Alert service voor Dapperbuurt Noord

Instellen

Meer nieuws in Dapperbuurt Noord

Weten hoe eenvoudig het is om af te vallen? Zonder pillen en smeersels en zonder je in het zweet te werken!
Kijk op eenvoudig-afvallen.nl

© 2012 - 2026 OOZO.nl - info@oozo.nl - Gegevens verwijderen? | Disclaimer | Privacy statement