Woning Tweede Leliedwarsstraat 5 Amsterdam

Tweede Leliedwarsstraat 5, 1015TB Amsterdam

Ontvang updates voor Bloemgrachtbuurt

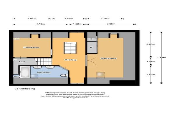
Het adres van deze woning uit 1905 is Tweede Leliedwarsstraat 5 te Amsterdam. Het pand heeft een oppervlakte van 137m² en heeft 5 kamers kamers waarvan 4 slaapkamers. De geschatte waarde van deze woning is € 940.000.

Bekijk alle woningen in Bloemgrachtbuurt

Gegevens van Beneden + bovenwoning (dubbel bovenhuis)

Bouwjaar
1905
Geschatte waarde
€ 940.000
Oppervlakte
137 m2
Inhoud
384 m3
Aantal kamers
5 kamers
Slaapkamers
4
Badkamers
2 badkamers
Soort bouw
Bestaande bouw
Eigendomssituatie
Volle eigendom
Ligging
In centrum en in woonwijk

Voorzieningen in de buurt

Boodschappen0,1 km
Grote supermarkt0,3 km
Cafetaria0,1 km
Restaurant0,1 km
Huisarts0,2 km
Ziekenhuis1,1 km
Kinderdagverblijf0,3 km
BSO0,4 km
Alle voorzieningen in Bloemgrachtbuurt

Binnenkijken bij Tweede Leliedwarsstraat 5 te Amsterdam

Meer meldingen in deze omgeving

Binnenkijken bij
Zondag 25-1-2026
Bloemstraat 272A, 1016KV Amsterdam

Binnenkijken bij
Zondag 25-1-2026
Egelantiersgracht 913, 1015RE Amsterdam

Binnenkijken bij
Zondag 25-1-2026
Nieuwe Leliestraat 1332, 1015SN Amsterdam

Binnenkijken bij
Zondag 25-1-2026
Bloemstraat 841, 1016LE Amsterdam

Binnenkijken bij
Donderdag 22-1-2026
Bloemstraat 272V, 1016KV Amsterdam

Nieuw bedrijf
Januari 2026
Bloemstraat 67B, 1016KX Amsterdam

Nieuw bedrijf
Januari 2026
Bloemgracht 123H, 1016KK Amsterdam

Nieuw bedrijf
Januari 2026
Bloemgracht 89, 1016KH Amsterdam

Direct een e-mail ontvangen bij nieuwe meldingen in deze regio?

Meld je dan GRATIS aan voor de Oozo Alert service voor Bloemgrachtbuurt

Instellen

Meer nieuws in Bloemgrachtbuurt

Weten hoe eenvoudig het is om af te vallen? Zonder pillen en smeersels en zonder je in het zweet te werken!
Kijk op eenvoudig-afvallen.nl

© 2012 - 2026 OOZO.nl - info@oozo.nl - Gegevens verwijderen? | Disclaimer | Privacy statement