Woning Boesemsingel 36 Bodegraven

Boesemsingel 36, 2411KX Bodegraven

Ontvang updates voor Broekvelden

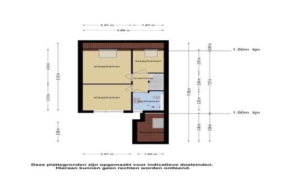
Het adres van deze woning uit 1985 is Boesemsingel 36 te Bodegraven. Het pand heeft een oppervlakte van 102m² en een perceeloppervlakte van 125m² en heeft 5 kamers kamers waarvan 4 slaapkamers. De geschatte waarde van deze woning is € 315.000.

Bekijk alle woningen in Broekvelden

Gegevens van Eengezinswoning

Bouwjaar
1985
Geschatte waarde
€ 315.000
Oppervlakte
102 m2
Inhoud
379 m3
Aantal kamers
5 kamers
Slaapkamers
4
Badkamers
1 badkamer en 1 apart toilet
Soort bouw
Bestaande bouw
Eigendomssituatie
Volle eigendom
Ligging
In woonwijk
Tuin
Tuin
Achtertuin
42 m² (4,95 meter diep en 8,5 meter breed)

Voorzieningen in de buurt

Boodschappen0,5 km
Grote supermarkt0,6 km
Cafetaria0,5 km
Restaurant0,7 km
Huisarts1,0 km
Ziekenhuis2,0 km
Kinderdagverblijf0,5 km
BSO0,5 km
Alle voorzieningen in Broekvelden

Binnenkijken bij Boesemsingel 36 te Bodegraven

Meer meldingen in deze omgeving

112 melding
Donderdag 15-1-2026 om 17:47
Europaweg, 2411NE Bodegraven

112 melding
Donderdag 15-1-2026 om 01:23
Europaweg, 2411NE Bodegraven

112 melding
Woensdag 14-1-2026 om 16:41
Beneluxweg, 2411NG Bodegraven

112 melding
Woensdag 14-1-2026 om 16:24
Beneluxweg, 2411NG Bodegraven

112 melding
Woensdag 14-1-2026 om 03:45
Europaweg, 2411NE Bodegraven

112 melding
Woensdag 14-1-2026 om 03:19
Europaweg, 2411NE Bodegraven

112 melding
Woensdag 14-1-2026 om 00:10
Europaweg, 2411NE Bodegraven

112 melding
Dinsdag 13-1-2026 om 21:16
Europaweg, 2411NE Bodegraven

Direct een e-mail ontvangen bij nieuwe meldingen in deze regio?

Meld je dan GRATIS aan voor de Oozo Alert service voor Broekvelden

Instellen

Meer nieuws in Broekvelden

Weten hoe eenvoudig het is om af te vallen? Zonder pillen en smeersels en zonder je in het zweet te werken!
Kijk op eenvoudig-afvallen.nl

© 2012 - 2026 OOZO.nl - info@oozo.nl - Gegevens verwijderen? | Disclaimer | Privacy statement