Woning Tarantostraat 26 Eindhoven

Tarantostraat 26, 5632RH Eindhoven

Ontvang updates voor Heesterakker

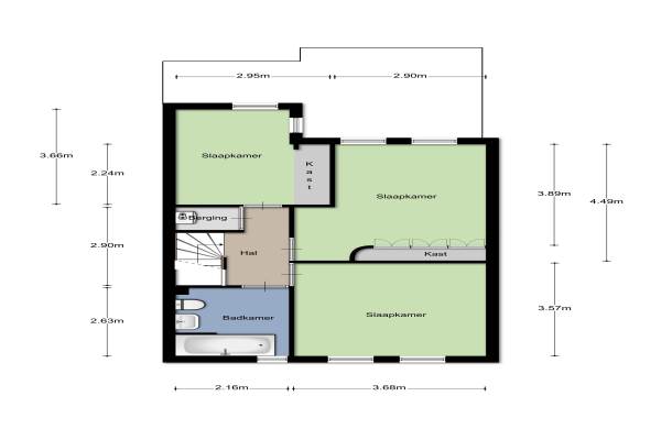
Het adres van deze woning uit 1974 is Tarantostraat 26 te Eindhoven. Het pand heeft een oppervlakte van 106m² en een perceeloppervlakte van 166m² en heeft 4 kamers kamers waarvan 3 slaapkamers. De geschatte waarde van deze woning is € 219.500.

Bekijk alle woningen in Heesterakker

Gegevens van Eengezinswoning, tussenwoning

Bouwjaar
1974
Geschatte waarde
€ 219.500
Oppervlakte
106 m2
Inhoud
343 m3
Aantal kamers
4 kamers
Slaapkamers
3
Badkamers
1 badkamer en 1 apart toilet
Soort bouw
Bestaande bouw
Eigendomssituatie
Volle eigendom
Ligging
Aan rustige weg en in woonwijk
Tuin
Achtertuin en voortuin
Achtertuin
66 m² (11m diep en 6m breed)

Voorzieningen in de buurt

Binnenkijken bij Tarantostraat 26 te Eindhoven

Meer meldingen in deze omgeving

Binnenkijken bij
Dinsdag 11-11-2025
Esperenkamp 26, 5632PX Eindhoven

Binnenkijken bij
Dinsdag 11-11-2025
Veronapad 14, 5632TR Eindhoven

Binnenkijken bij
Dinsdag 11-11-2025
Italiëlaan 10, 5632TE Eindhoven

Binnenkijken bij
Dinsdag 11-11-2025
Siënalaan 53, 5632TT Eindhoven

Binnenkijken bij
Woensdag 29-10-2025
Baristraat 70, 5632TL Eindhoven

Nieuw bedrijf
Oktober 2025
Mirabelweg 54, 5632PD Eindhoven

112 melding
Zondag 26-10-2025 om 07:41
Florencelaan, 5632PT Eindhoven

112 melding
Zondag 26-10-2025 om 07:26
Florencelaan, 5632PT Eindhoven

Direct een e-mail ontvangen bij nieuwe meldingen in deze regio?

Meld je dan GRATIS aan voor de Oozo Alert service voor Heesterakker

Instellen

Meer nieuws in Heesterakker

Weten hoe eenvoudig het is om af te vallen? Zonder pillen en smeersels en zonder je in het zweet te werken!
Kijk op eenvoudig-afvallen.nl

© 2012 - 2025 OOZO.nl - info@oozo.nl - Gegevens verwijderen? | Disclaimer | Privacy statement