Woning Herdersveld 51 Geldrop

Herdersveld 51, 5665JL Geldrop

Ontvang updates voor Coevering

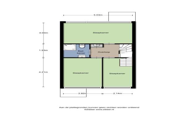
Het adres van deze woning uit 1978 is Herdersveld 51 te Geldrop. Het pand heeft een oppervlakte van 114m² en een perceeloppervlakte van 170m² en heeft 5 kamers kamers waarvan 4 slaapkamers. De geschatte waarde van deze woning is € 189.500.

Bekijk alle woningen in Coevering

Gegevens van Eengezinswoning, tussenwoning

Bouwjaar
1978
Geschatte waarde
€ 189.500
Oppervlakte
114 m2
Inhoud
400 m3
Aantal kamers
5 kamers
Slaapkamers
4
Badkamers
1 badkamer en 1 apart toilet
Soort bouw
Bestaande bouw
Eigendomssituatie
Volle eigendom
Ligging
Aan bosrand, aan rustige weg, in woonwijk, beschutte ligging en in bosrijke omgeving
Tuin
Achtertuin en voortuin
Achtertuin
86 m² (16m diep en 5,4m breed)

Voorzieningen in de buurt

Boodschappen0,6 km
Grote supermarkt0,6 km
Cafetaria0,6 km
Restaurant1,1 km
Huisarts0,6 km
Ziekenhuis1,6 km
Kinderdagverblijf0,8 km
BSO0,6 km
Alle voorzieningen in Coevering

Binnenkijken bij Herdersveld 51 te Geldrop

Meer meldingen in deze omgeving

112 melding
Zondag 2-11-2025 om 18:50
Beringstraat, Geldrop

Binnenkijken bij
Woensdag 29-10-2025
Reinoutlaan 281, 5665AT Geldrop

Binnenkijken bij
Woensdag 29-10-2025
Wethouder Jeuckenstraat 7, 5665SC Geldrop

Nieuw bedrijf
Oktober 2025
Reinoutlaan 50, 5665AA Geldrop

Nieuw bedrijf
Oktober 2025
Pieter Nuytsstraat 150, 5665JJ Geldrop

Binnenkijken bij
Dinsdag 14-10-2025
Waleweinlaan 76, 5665CK Geldrop

112 melding
Maandag 13-10-2025 om 16:33
Winkelcentrum Coevering, 5665GA Geldrop

Nieuw bedrijf
Oktober 2025
John Franklinstraat 35, 5665GE Geldrop

Direct een e-mail ontvangen bij nieuwe meldingen in deze regio?

Meld je dan GRATIS aan voor de Oozo Alert service voor Coevering

Instellen

Meer nieuws in Coevering

Weten hoe eenvoudig het is om af te vallen? Zonder pillen en smeersels en zonder je in het zweet te werken!
Kijk op eenvoudig-afvallen.nl

© 2012 - 2025 OOZO.nl - info@oozo.nl - Gegevens verwijderen? | Disclaimer | Privacy statement