Woning Van Iddekingeweg 12 Groningen

Van Iddekingeweg 12, 9721CH Groningen

Ontvang updates voor Helpman

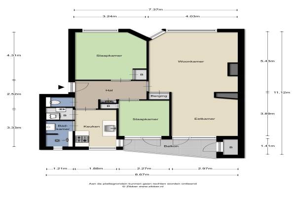
Het adres van deze woning uit 1954 is Van Iddekingeweg 12 te Groningen. Het pand heeft een oppervlakte van 77m² en heeft 3 kamers kamers waarvan 2 slaapkamers. De geschatte waarde van deze woning is € 145.000.

Bekijk alle woningen in Helpman

Gegevens van Portiekflat (appartement)

Bouwjaar
1954
Geschatte waarde
€ 145.000
Oppervlakte
77 m2
Inhoud
262 m3
Aantal kamers
3 kamers
Slaapkamers
2
Badkamers
1 badkamer en 1 apart toilet
Soort bouw
Bestaande bouw
Ligging
Aan drukke weg, in centrum en in woonwijk

Voorzieningen in de buurt

Boodschappen0,3 km
Grote supermarkt0,4 km
Cafetaria0,3 km
Restaurant0,3 km
Huisarts0,4 km
Ziekenhuis2,4 km
Kinderdagverblijf0,3 km
BSO0,5 km
Alle voorzieningen in Helpman

Binnenkijken bij Van Iddekingeweg 12 te Groningen

Meer meldingen in deze omgeving

Binnenkijken bij
Maandag 6-4-2026
Verlengde Hereweg 91B, 9721AH Groningen

Binnenkijken bij
Donderdag 2-4-2026
Van Iddekingeweg 18, 9721CH Groningen

Binnenkijken bij
Donderdag 2-4-2026
Van Houtenlaan 108, 9722GW Groningen

Binnenkijken bij
Dinsdag 31-3-2026
Helperveste 40, 9721BJ Groningen

Binnenkijken bij
Zondag 29-3-2026
Coendersweg 33, 9722GB Groningen

Binnenkijken bij
Vrijdag 27-3-2026
Van Panhuysstraat 11, 9721GA Groningen

Nieuw bedrijf
Maart 2026
Helper Weststraat 44, 9721BS Groningen

Binnenkijken bij
Donderdag 26-3-2026
Verlengde Hereweg 133A, 9721AL Groningen

Direct een e-mail ontvangen bij nieuwe meldingen in deze regio?

Meld je dan GRATIS aan voor de Oozo Alert service voor Helpman

Instellen

Meer nieuws in Helpman

Weten hoe eenvoudig het is om af te vallen? Zonder pillen en smeersels en zonder je in het zweet te werken!
Kijk op eenvoudig-afvallen.nl

© 2012 - 2026 OOZO.nl - info@oozo.nl - Gegevens verwijderen? | Disclaimer | Privacy statement