Woning James Ensorlaan 3 Helmond

James Ensorlaan 3, 5702VN Helmond

Ontvang updates voor Bloemvelden

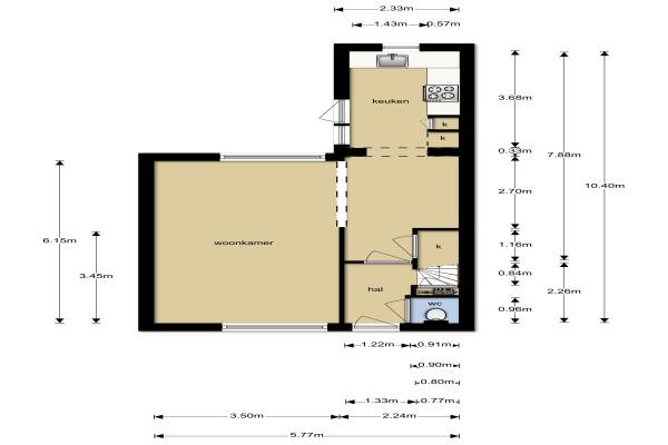
Het adres van deze woning uit 1965 is James Ensorlaan 3 te Helmond. Het pand heeft een oppervlakte van 92m² en een perceeloppervlakte van 169m² en heeft 4 kamers kamers waarvan 3 slaapkamers. De geschatte waarde van deze woning is € 189.999.

Bekijk alle woningen in Bloemvelden

Gegevens van Eengezinswoning, tussenwoning

Bouwjaar
1965
Geschatte waarde
€ 189.999
Oppervlakte
92 m2
Inhoud
300 m3
Aantal kamers
4 kamers
Slaapkamers
3
Badkamers
1 badkamer en 2 aparte toiletten
Soort bouw
Bestaande bouw
Eigendomssituatie
Volle eigendom
Ligging
Aan rustige weg, in woonwijk en beschutte ligging
Tuin
Achtertuin en voortuin
Achtertuin
60 m² (12m diep en 5m breed)

Voorzieningen in de buurt

Boodschappen0,6 km
Grote supermarkt0,7 km
Cafetaria0,5 km
Restaurant0,7 km
Huisarts0,8 km
Ziekenhuis2,8 km
Kinderdagverblijf0,7 km
BSO0,7 km
Alle voorzieningen in Bloemvelden

Binnenkijken bij James Ensorlaan 3 te Helmond

Meer meldingen in deze omgeving

Nieuw bedrijf
Oktober 2025
Jan van Goyenlaan 168, 5702BG Helmond

Nieuw bedrijf
Oktober 2025
Johannes Bosboomstraat 15, 5702VL Helmond

Binnenkijken bij
Woensdag 29-10-2025
James Ensorlaan 5, 5702VN Helmond

Binnenkijken bij
Woensdag 29-10-2025
Jeroen Boschstraat 5, 5702XP Helmond

Binnenkijken bij
Woensdag 29-10-2025
Breitnerlaan 40, 5702TW Helmond

Nieuw bedrijf
Oktober 2025
James Ensorlaan 21, 5702VN Helmond

112 melding
Zondag 26-10-2025 om 14:58
Rogier van der Weydenstraat, 5702XT Helmond

112 melding
Zondag 26-10-2025 om 14:57
Rogier van der Weydenstraat, 5702XT Helmond

Direct een e-mail ontvangen bij nieuwe meldingen in deze regio?

Meld je dan GRATIS aan voor de Oozo Alert service voor Bloemvelden

Instellen

Meer nieuws in Bloemvelden

Weten hoe eenvoudig het is om af te vallen? Zonder pillen en smeersels en zonder je in het zweet te werken!
Kijk op eenvoudig-afvallen.nl

© 2012 - 2025 OOZO.nl - info@oozo.nl - Gegevens verwijderen? | Disclaimer | Privacy statement