Woning Schellinglaan 27 Voorburg

Schellinglaan 27, 2271VD Voorburg

Ontvang updates voor Voorburg Oud

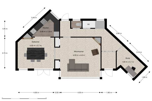
Het adres van deze woning uit 1929 is Schellinglaan 27 te Voorburg. Het pand heeft een oppervlakte van 214m² en een perceeloppervlakte van 152m² en heeft 7 kamers kamers waarvan 5 slaapkamers. De geschatte waarde van deze woning is € 739.000.

Bekijk alle woningen in Voorburg Oud

Gegevens van Herenhuis, tussenwoning

Bouwjaar
1929
Geschatte waarde
€ 739.000
Oppervlakte
214 m2
Inhoud
750 m3
Aantal kamers
7 kamers
Slaapkamers
5
Badkamers
2 aparte toiletten
Soort bouw
Bestaande bouw
Eigendomssituatie
Volle eigendom
Tuin
Achtertuin en voortuin

Voorzieningen in de buurt

Boodschappen0,3 km
Grote supermarkt0,4 km
Cafetaria0,3 km
Restaurant0,2 km
Huisarts0,3 km
Ziekenhuis0,8 km
Kinderdagverblijf0,5 km
BSO0,6 km
Alle voorzieningen in Voorburg Oud

Binnenkijken bij Schellinglaan 27 te Voorburg

Meer meldingen in deze omgeving

112 melding
Woensdag 12-11-2025 om 09:11
Sophiastraat, Voorburg

Binnenkijken bij
Dinsdag 11-11-2025
Oosteinde 219, 2271EG Voorburg

Binnenkijken bij
Dinsdag 11-11-2025
Einddorpstraat 39, 2271VS Voorburg

Binnenkijken bij
Dinsdag 11-11-2025
Rozenboomlaan 42, 2271VN Voorburg

Binnenkijken bij
Dinsdag 11-11-2025
Rozenboomlaan 32, 2271VN Voorburg

Binnenkijken bij
Dinsdag 11-11-2025
Parkweg 287, 2271BC Voorburg

Nieuw bedrijf
November 2025
Parkweg 291, 2271BD Voorburg

Nieuw bedrijf
November 2025
Herenstraat 106, 2271CL Voorburg

Direct een e-mail ontvangen bij nieuwe meldingen in deze regio?

Meld je dan GRATIS aan voor de Oozo Alert service voor Voorburg Oud

Instellen

Meer nieuws in Voorburg Oud

Weten hoe eenvoudig het is om af te vallen? Zonder pillen en smeersels en zonder je in het zweet te werken!
Kijk op eenvoudig-afvallen.nl

© 2012 - 2025 OOZO.nl - info@oozo.nl - Gegevens verwijderen? | Disclaimer | Privacy statement