Woning Noordpoortstraat 7B Middelburg

Noordpoortstraat 7B, 4331RP Middelburg

Ontvang updates voor Binnenstad

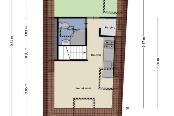
Het adres van deze woning uit 1908 is Noordpoortstraat 7B te Middelburg. Het pand heeft een oppervlakte van 41m² en heeft 2 kamers kamers waarvan 1 slaapkamers. De geschatte waarde van deze woning is € 175.000.

Bekijk alle woningen in Binnenstad

Gegevens van Bovenwoning (appartement)

Bouwjaar
1908
Geschatte waarde
€ 175.000
Oppervlakte
41 m2
Inhoud
143 m3
Aantal kamers
2 kamers
Slaapkamers
1
Badkamers
1 badkamer
Soort bouw
Bestaande bouw
Eigendomssituatie
Volle eigendom
Ligging
In centrum

Voorzieningen in de buurt

Boodschappen0,2 km
Grote supermarkt0,5 km
Cafetaria0,2 km
Restaurant0,2 km
Huisarts0,3 km
Ziekenhuis0,8 km
Kinderdagverblijf0,4 km
BSO0,4 km
Alle voorzieningen in Binnenstad

Binnenkijken bij Noordpoortstraat 7B te Middelburg

Meer meldingen in deze omgeving

112 melding
Vrijdag 23-1-2026 om 07:41
Ganzengang, 4331TK Middelburg

112 melding
Vrijdag 23-1-2026 om 07:41
Ganzengang, 4331TK Middelburg

Onroerend goed
Donderdag 22-1-2026
Sint Janstraat 3, 4331KA Middelburg

Nieuw bedrijf
Januari 2026
Molenwater 33, 4331SC Middelburg

Binnenkijken bij
Woensdag 21-1-2026
Bellinkplein 2C, 4331GX Middelburg

Binnenkijken bij
Woensdag 21-1-2026
Rouaansekaai 83, 4331HD Middelburg

112 melding
Maandag 19-1-2026 om 19:07
Rouaansekaai, Middelburg

Binnenkijken bij
Vrijdag 16-1-2026
Klein Vlaanderen 70, 4331RL Middelburg

Direct een e-mail ontvangen bij nieuwe meldingen in deze regio?

Meld je dan GRATIS aan voor de Oozo Alert service voor Binnenstad

Instellen

Meer nieuws in Binnenstad

Weten hoe eenvoudig het is om af te vallen? Zonder pillen en smeersels en zonder je in het zweet te werken!
Kijk op eenvoudig-afvallen.nl

© 2012 - 2026 OOZO.nl - info@oozo.nl - Gegevens verwijderen? | Disclaimer | Privacy statement