Woning Abbringstraat 62 Purmerend

Abbringstraat 62, 1447PB Purmerend

Ontvang updates voor Purmer-Zuid/Zuid

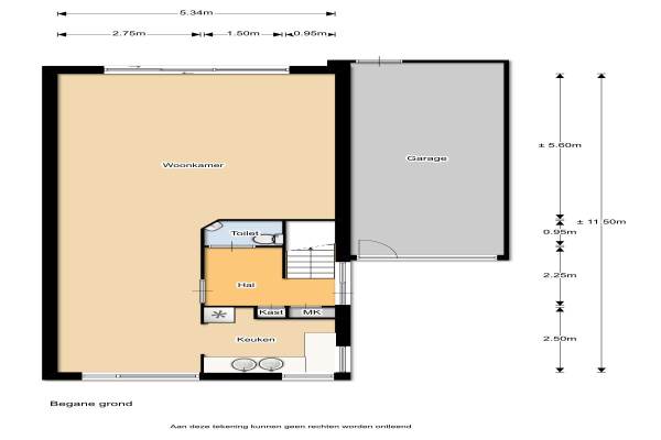
Het adres van deze woning uit 1990 is Abbringstraat 62 te Purmerend. Het pand heeft een oppervlakte van 137m² en een perceeloppervlakte van 918m² en heeft 6 kamers kamers waarvan 4 slaapkamers. De geschatte waarde van deze woning is € 399.000.

Bekijk alle woningen in Purmer-Zuid/Zuid

Gegevens van Herenhuis, 2-onder-1-kapwoning

Bouwjaar
1990
Geschatte waarde
€ 399.000
Oppervlakte
137 m2
Inhoud
430 m3
Aantal kamers
6 kamers
Slaapkamers
4
Badkamers
1 badkamer en 1 apart toilet
Soort bouw
Bestaande bouw
Eigendomssituatie
Eigendom belast met erfpacht
Ligging
Aan water, aan rustige weg en in woonwijk
Tuin
Achtertuin en voortuin

Voorzieningen in de buurt

Boodschappen1,3 km
Grote supermarkt1,4 km
Cafetaria1,1 km
Restaurant2,7 km
Huisarts0,7 km
Ziekenhuis2,3 km
Kinderdagverblijf0,5 km
BSO1,2 km
Alle voorzieningen in Purmer-Zuid/Zuid

Binnenkijken bij Abbringstraat 62 te Purmerend

Meer meldingen in deze omgeving

112 melding
Zaterdag 29-11-2025 om 08:33
Jurgensstraat, 1447PS Purmerend

Binnenkijken bij
Zaterdag 29-11-2025
Bisschop Romerostraat 37, 1447ZW Purmerend

Binnenkijken bij
Zaterdag 29-11-2025
Monteverdistraat 169, 1447NG Purmerend

Binnenkijken bij
Vrijdag 28-11-2025
Jan Bijhouwerstraat 55, 1447GS Purmerend

112 melding
Donderdag 27-11-2025 om 21:13
Moeder Teresastraat, Purmerend

112 melding
Donderdag 27-11-2025 om 12:34
Persijnlaan, Purmerend

Binnenkijken bij
Dinsdag 25-11-2025
Persijnlaan 3, 1447EM Purmerend

112 melding
Maandag 24-11-2025 om 19:13
Persijnlaan, Purmerend

Direct een e-mail ontvangen bij nieuwe meldingen in deze regio?

Meld je dan GRATIS aan voor de Oozo Alert service voor Purmer-Zuid/Zuid

Instellen

Meer nieuws in Purmer-Zuid/Zuid

Weten hoe eenvoudig het is om af te vallen? Zonder pillen en smeersels en zonder je in het zweet te werken!
Kijk op eenvoudig-afvallen.nl

© 2012 - 2025 OOZO.nl - info@oozo.nl - Gegevens verwijderen? | Disclaimer | Privacy statement