Woning Bredeweg 324a Roermond

Bredeweg 324a, 6043GH Roermond

Ontvang updates voor Roermondse Veld

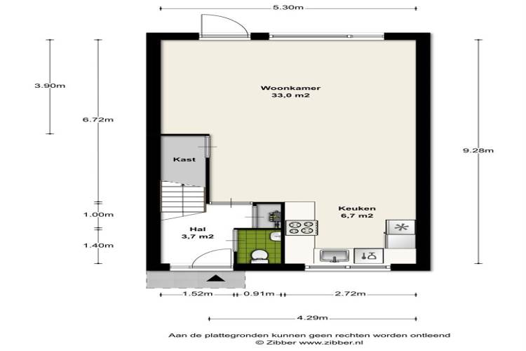
Het adres van deze woning uit 2006 is Bredeweg 324a te Roermond. Het pand heeft een oppervlakte van 98m² en een perceeloppervlakte van 137m² en heeft 5 kamers kamers waarvan 4 slaapkamers. De geschatte waarde van deze woning is € 195.000.

Bekijk alle woningen in Roermondse Veld

Gegevens van Eengezinswoning, tussenwoning

Bouwjaar
2006
Geschatte waarde
€ 195.000
Oppervlakte
98 m2
Inhoud
421 m3
Aantal kamers
5 kamers
Slaapkamers
4
Badkamers
1 badkamer en 1 apart toilet
Soort bouw
Bestaande bouw
Eigendomssituatie
Volle eigendom
Ligging
Aan drukke weg en in woonwijk
Tuin
Achtertuin en voortuin
Achtertuin
50 m² (10m diep en 5m breed)

Voorzieningen in de buurt

Boodschappen0,3 km
Grote supermarkt0,3 km
Cafetaria0,3 km
Restaurant0,5 km
Huisarts0,7 km
Ziekenhuis0,7 km
Kinderdagverblijf0,4 km
BSO0,9 km
Alle voorzieningen in Roermondse Veld

Binnenkijken bij Bredeweg 324a te Roermond

Meer meldingen in deze omgeving

Nieuw bedrijf
December 2025
Dominee Hoogendijkstraat 13, 6043AS Roermond

Nieuw bedrijf
December 2025
Lovaniostraat 5, 6043CD Roermond

Nieuw bedrijf
December 2025
Hendriklaan 36, 6043BS Roermond

Nieuw bedrijf
December 2025
Julianastraat 4, 6043AV Roermond

112 melding
Dinsdag 9-12-2025 om 16:38
Monseigneur Driessenstraat, 6043CV Roermond

112 melding
Maandag 8-12-2025 om 18:11
Burgemeester Rauppstraat, 6043AX Roermond

112 melding
Zondag 7-12-2025 om 09:38
Heerbaan Breywegh, 6043GX Roermond

112 melding
Donderdag 4-12-2025 om 14:08
Monseigneur Driessenstraat, 6043CV Roermond

Direct een e-mail ontvangen bij nieuwe meldingen in deze regio?

Meld je dan GRATIS aan voor de Oozo Alert service voor Roermondse Veld

Instellen

Meer nieuws in Roermondse Veld

Weten hoe eenvoudig het is om af te vallen? Zonder pillen en smeersels en zonder je in het zweet te werken!
Kijk op eenvoudig-afvallen.nl

© 2012 - 2025 OOZO.nl - info@oozo.nl - Gegevens verwijderen? | Disclaimer | Privacy statement