Woning Sperwerstraat 11a Rotterdam

Sperwerstraat 11a, 3082MD Rotterdam

Ontvang updates voor Oud Charlois

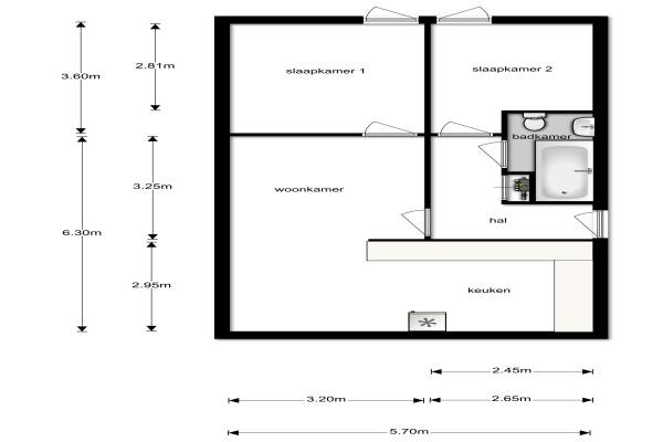
Het adres van deze woning uit 1941 is Sperwerstraat 11a te Rotterdam. Het pand heeft een oppervlakte van 55m² en heeft 3 kamers kamers waarvan 2 slaapkamers. De geschatte waarde van deze woning is € 123.500.

Bekijk alle woningen in Oud Charlois

Gegevens van Benedenwoning (appartement)

Bouwjaar
1941
Geschatte waarde
€ 123.500
Oppervlakte
55 m2
Inhoud
160 m3
Aantal kamers
3 kamers
Slaapkamers
2
Badkamers
1 badkamer
Soort bouw
Bestaande bouw
Eigendomssituatie
Volle eigendom
Ligging
Aan rustige weg en in woonwijk
Tuin
Achtertuin en voortuin
Achtertuin
55 m² (9,7m diep en 5,7m breed)

Voorzieningen in de buurt

Boodschappen0,2 km
Grote supermarkt0,4 km
Cafetaria0,3 km
Restaurant0,3 km
Huisarts0,4 km
Ziekenhuis2,3 km
Kinderdagverblijf0,3 km
BSO0,5 km
Alle voorzieningen in Oud Charlois

Binnenkijken bij Sperwerstraat 11a te Rotterdam

Meer meldingen in deze omgeving

112 melding
Zaterdag 15-11-2025 om 15:38
Pompstraat, 3082RS Rotterdam

112 melding
Zaterdag 15-11-2025 om 15:38
Pompstraat, Rotterdam

112 melding
Zaterdag 15-11-2025 om 11:13
Talingstraat, 3082MH Rotterdam

112 melding
Zaterdag 15-11-2025 om 09:42
Charloisse Hoofd, Rotterdam

112 melding
Vrijdag 14-11-2025 om 14:28
Maximiliaanstraat, Rotterdam

Binnenkijken bij
Vrijdag 14-11-2025
Frans Bekkerstraat 100D, 3082TX Rotterdam

Binnenkijken bij
Vrijdag 14-11-2025
Schilperoortstraat 41A, 3082SP Rotterdam

Binnenkijken bij
Vrijdag 14-11-2025
Schilperoortstraat 70B02, 3082SX Rotterdam

Direct een e-mail ontvangen bij nieuwe meldingen in deze regio?

Meld je dan GRATIS aan voor de Oozo Alert service voor Oud Charlois

Instellen

Meer nieuws in Oud Charlois

Weten hoe eenvoudig het is om af te vallen? Zonder pillen en smeersels en zonder je in het zweet te werken!
Kijk op eenvoudig-afvallen.nl

© 2012 - 2025 OOZO.nl - info@oozo.nl - Gegevens verwijderen? | Disclaimer | Privacy statement