Woning Aalscholverstraat 24 Rotterdam

Aalscholverstraat 24, 3082ZB Rotterdam

Ontvang updates voor Oud Charlois

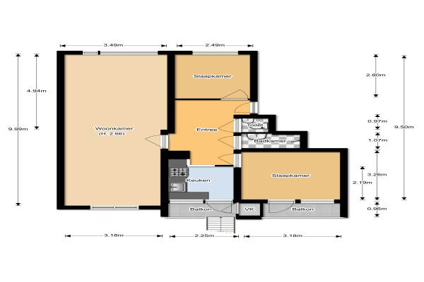
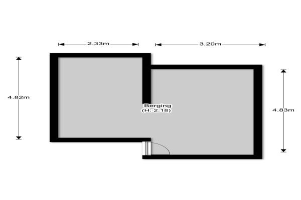
Het adres van deze woning uit 1953 is Aalscholverstraat 24 te Rotterdam. Het pand heeft een oppervlakte van 74m² en heeft 3 kamers kamers waarvan 2 slaapkamers. De geschatte waarde van deze woning is € 159.950.

Bekijk alle woningen in Oud Charlois

Gegevens van Portiekflat (appartement)

Bouwjaar
1953
Geschatte waarde
€ 159.950
Oppervlakte
74 m2
Inhoud
197 m3
Aantal kamers
3 kamers
Slaapkamers
2
Soort bouw
Bestaande bouw
Eigendomssituatie
Volle eigendom
Ligging
Aan rustige weg en in woonwijk
Tuin
Achtertuin
Achtertuin
100 m² (11,58m diep en 8,61m breed)

Voorzieningen in de buurt

Boodschappen0,2 km
Grote supermarkt0,4 km
Cafetaria0,3 km
Restaurant0,3 km
Huisarts0,4 km
Ziekenhuis2,3 km
Kinderdagverblijf0,3 km
BSO0,5 km
Alle voorzieningen in Oud Charlois

Binnenkijken bij Aalscholverstraat 24 te Rotterdam

Meer meldingen in deze omgeving

112 melding
Zondag 18-1-2026 om 18:56
Charloisse Hoofd, 3087XB Rotterdam

112 melding
Zondag 18-1-2026 om 15:53
Pendrechtstraat, 3082XA Rotterdam

112 melding
Zondag 18-1-2026 om 11:43
Charloisse Hoofd, 3087CA Rotterdam

112 melding
Zondag 18-1-2026 om 01:23
Maximiliaanstraat, 3082EB Rotterdam

112 melding
Zaterdag 17-1-2026 om 18:40
Dorpsweg, 3082LH Rotterdam

112 melding
Zaterdag 17-1-2026 om 11:29
Boergoensestraat, 3082KD Rotterdam

112 melding
Zaterdag 17-1-2026 om 09:44
Portlandstraat, 3082XK Rotterdam

112 melding
Zaterdag 17-1-2026 om 05:33
Verboomstraat, 3082JC Rotterdam

Direct een e-mail ontvangen bij nieuwe meldingen in deze regio?

Meld je dan GRATIS aan voor de Oozo Alert service voor Oud Charlois

Instellen

Meer nieuws in Oud Charlois

Weten hoe eenvoudig het is om af te vallen? Zonder pillen en smeersels en zonder je in het zweet te werken!
Kijk op eenvoudig-afvallen.nl

© 2012 - 2026 OOZO.nl - info@oozo.nl - Gegevens verwijderen? | Disclaimer | Privacy statement