Woning Karel Doormanstraat 309C Rotterdam

Karel Doormanstraat 309C, 3012GH Rotterdam

Ontvang updates voor Cool

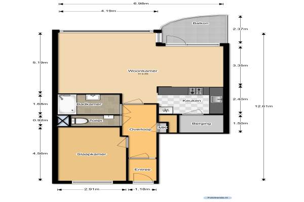
Het adres van deze woning uit 1987 is Karel Doormanstraat 309C te Rotterdam. Het pand heeft een oppervlakte van 75m² en heeft 2 kamers kamers waarvan 1 slaapkamers. De geschatte waarde van deze woning is € 259.000.

Bekijk alle woningen in Cool

Gegevens van Bovenwoning (appartement)

Bouwjaar
1987
Geschatte waarde
€ 259.000
Oppervlakte
75 m2
Inhoud
217 m3
Aantal kamers
2 kamers
Slaapkamers
1
Badkamers
1 apart toilet
Soort bouw
Bestaande bouw
Eigendomssituatie
Gemeentelijk eigendom belast met erfpacht (einddatum erfpacht: 31-12-2084)
Ligging
In centrum

Voorzieningen in de buurt

Boodschappen0,2 km
Grote supermarkt0,2 km
Cafetaria0,1 km
Restaurant0,1 km
Huisarts0,7 km
Ziekenhuis0,7 km
Kinderdagverblijf0,3 km
BSO0,5 km
Alle voorzieningen in Cool

Binnenkijken bij Karel Doormanstraat 309C te Rotterdam

Meer meldingen in deze omgeving

112 melding
Dinsdag 14-10-2025 om 20:36
Westblaak, 3012KE Rotterdam

112 melding
Dinsdag 14-10-2025 om 19:38
Westblaak, 3012KE Rotterdam

112 melding
Dinsdag 14-10-2025 om 19:30
Binnenwegplein, 3012KA Rotterdam

112 melding
Dinsdag 14-10-2025 om 18:50
Jacobusstraat, 3012JL Rotterdam

112 melding
Dinsdag 14-10-2025 om 12:56
Karel Doormanstraat, 3012GH Rotterdam

112 melding
Maandag 13-10-2025 om 18:47
Mauritsstraat, 3012CJ Rotterdam

Faillissement
Maandag 13-10-2025
Weena 690, 3012CN Rotterdam


Direct een e-mail ontvangen bij nieuwe meldingen in deze regio?

Meld je dan GRATIS aan voor de Oozo Alert service voor Cool

Instellen

Meer nieuws in Cool

Weten hoe eenvoudig het is om af te vallen? Zonder pillen en smeersels en zonder je in het zweet te werken!
Kijk op eenvoudig-afvallen.nl

© 2012 - 2025 OOZO.nl - info@oozo.nl - Gegevens verwijderen? | Disclaimer | Privacy statement