Woning Sperwerhof 128 Schagen

Sperwerhof 128, 1742EK Schagen

Ontvang updates voor Waldervaart-Noord

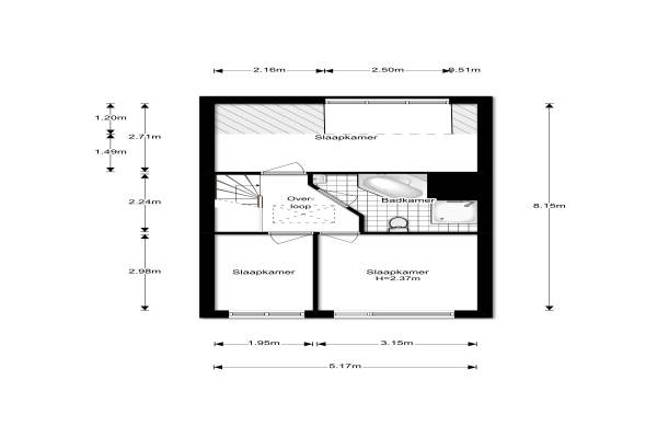
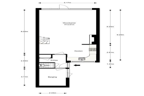
Het adres van deze woning uit 1976 is Sperwerhof 128 te Schagen. Het pand heeft een oppervlakte van 90m² en een perceeloppervlakte van 122m² en heeft 5 kamers kamers waarvan 3 slaapkamers. De geschatte waarde van deze woning is € 219.000.

Bekijk alle woningen in Waldervaart-Noord

Gegevens van Eengezinswoning, tussenwoning

Bouwjaar
1976
Geschatte waarde
€ 219.000
Oppervlakte
90 m2
Inhoud
382 m3
Aantal kamers
5 kamers
Slaapkamers
3
Badkamers
1 badkamer en 1 apart toilet
Soort bouw
Bestaande bouw
Eigendomssituatie
Volle eigendom
Ligging
Aan water en in woonwijk
Tuin
Achtertuin en voortuin
Achtertuin
66 m² (5,5m diep en 12m breed)

Voorzieningen in de buurt

Binnenkijken bij Sperwerhof 128 te Schagen

Meer meldingen in deze omgeving

112 melding
Donderdag 30-10-2025 om 16:03
Eksterstraat, 1742ES Schagen

112 melding
Donderdag 30-10-2025 om 14:25
Eksterstraat, 1742ES Schagen

112 melding
Donderdag 30-10-2025 om 11:13
Mezenhof, Schagen

112 melding
Donderdag 30-10-2025 om 10:19
Westerpark, Schagen

112 melding
Woensdag 29-10-2025 om 14:38
Gruttolaan, 1742BS Schagen

Binnenkijken bij
Woensdag 29-10-2025
Westerpark 123, 1742BW Schagen

Binnenkijken bij
Woensdag 29-10-2025
Fazantenhof 89, 1742AH Schagen

112 melding
Woensdag 29-10-2025 om 08:46
Fazantenhof, 1742AG Schagen

Direct een e-mail ontvangen bij nieuwe meldingen in deze regio?

Meld je dan GRATIS aan voor de Oozo Alert service voor Waldervaart-Noord

Instellen

Meer nieuws in Waldervaart-Noord

Weten hoe eenvoudig het is om af te vallen? Zonder pillen en smeersels en zonder je in het zweet te werken!
Kijk op eenvoudig-afvallen.nl

© 2012 - 2025 OOZO.nl - info@oozo.nl - Gegevens verwijderen? | Disclaimer | Privacy statement