Woning Patrijzenhof 13 Schagen

Patrijzenhof 13, 1742BD Schagen

Ontvang updates voor Waldervaart-Noord

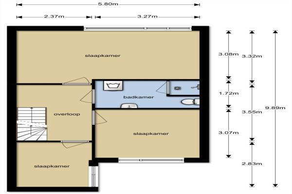
Het adres van deze woning uit 1976 is Patrijzenhof 13 te Schagen. Het pand heeft een oppervlakte van 131m² en een perceeloppervlakte van 182m² en heeft 5 kamers kamers waarvan 4 slaapkamers. De geschatte waarde van deze woning is € 244.500.

Bekijk alle woningen in Waldervaart-Noord

Gegevens van Eengezinswoning, hoekwoning

Bouwjaar
1976
Geschatte waarde
€ 244.500
Oppervlakte
131 m2
Inhoud
519 m3
Aantal kamers
5 kamers
Slaapkamers
4
Badkamers
1 badkamer en 1 apart toilet
Soort bouw
Bestaande bouw
Eigendomssituatie
Volle eigendom
Ligging
In woonwijk
Tuin
Achtertuin en voortuin
Achtertuin
60 m² (10m diep en 6m breed)

Voorzieningen in de buurt

Binnenkijken bij Patrijzenhof 13 te Schagen

Meer meldingen in deze omgeving

112 melding
Vrijdag 19-12-2025 om 09:25
Mussenhof, 1742JP Schagen

112 melding
Vrijdag 19-12-2025 om 08:29
Sperwerhof, 1742EG Schagen

112 melding
Donderdag 18-12-2025 om 14:28
Sperwerhof, 1742EG Schagen

112 melding
Donderdag 18-12-2025 om 11:49
Gruttolaan, Schagen

112 melding
Woensdag 17-12-2025 om 11:25
Kievitlaan, 1742AE Schagen

112 melding
Dinsdag 16-12-2025 om 14:43
Mussenhof, 1742JP Schagen

112 melding
Maandag 15-12-2025 om 21:10
Westerpark, Schagen

112 melding
Maandag 15-12-2025 om 12:03
Merelstraat, 1742JL Schagen

Direct een e-mail ontvangen bij nieuwe meldingen in deze regio?

Meld je dan GRATIS aan voor de Oozo Alert service voor Waldervaart-Noord

Instellen

Meer nieuws in Waldervaart-Noord

Weten hoe eenvoudig het is om af te vallen? Zonder pillen en smeersels en zonder je in het zweet te werken!
Kijk op eenvoudig-afvallen.nl

© 2012 - 2025 OOZO.nl - info@oozo.nl - Gegevens verwijderen? | Disclaimer | Privacy statement