Woning Prins Hendriklaan 31 Zeist

Prins Hendriklaan 31, 3701CL Zeist

Ontvang updates voor Centrumschil-Zuid

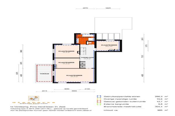
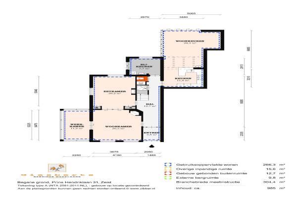
Het adres van deze woning uit 1902 is Prins Hendriklaan 31 te Zeist. Het pand heeft een oppervlakte van 266m² en een perceeloppervlakte van 458m² en heeft 8 kamers kamers waarvan 5 slaapkamers. De geschatte waarde van deze woning is € 1.250.000.

Bekijk alle woningen in Centrumschil-Zuid

Gegevens van Villa, 2-onder-1-kapwoning

Bouwjaar
1902
Geschatte waarde
€ 1.250.000
Oppervlakte
266 m2
Inhoud
985 m3
Aantal kamers
8 kamers
Slaapkamers
5
Badkamers
2 badkamers en 3 aparte toiletten
Soort bouw
Bestaande bouw
Eigendomssituatie
Volle eigendom
Ligging
In centrum en in bosrijke omgeving
Tuin
Achtertuin, voortuin en zijtuin
Achtertuin
252 m² (18m diep en 14m breed)

Voorzieningen in de buurt

Boodschappen0,3 km
Grote supermarkt0,5 km
Cafetaria0,3 km
Restaurant0,3 km
Huisarts0,6 km
Ziekenhuis1,4 km
Kinderdagverblijf0,5 km
BSO0,4 km
Alle voorzieningen in Centrumschil-Zuid

Binnenkijken bij Prins Hendriklaan 31 te Zeist

Meer meldingen in deze omgeving

Nieuw bedrijf
Maart 2026
Prof. Lorentzlaan 12, 3701CC Zeist

Nieuw bedrijf
Maart 2026
1e Dorpsstraat 20, 3701HB Zeist

Binnenkijken bij
Donderdag 5-3-2026
Montaubanstraat 279, 3701HN Zeist

Nieuw bedrijf
Februari 2026
Parklaan 13, 3701CE Zeist

112 melding
Maandag 23-2-2026 om 18:30
2e Dorpsstraat, 3701AA Zeist

112 melding
Zondag 22-2-2026 om 13:28
Montaubanstraat, Zeist

112 melding
Zondag 22-2-2026 om 13:28
Montaubanstraat, Zeist

112 melding
Zondag 22-2-2026 om 02:47
Montaubanstraat, Zeist

Direct een e-mail ontvangen bij nieuwe meldingen in deze regio?

Meld je dan GRATIS aan voor de Oozo Alert service voor Centrumschil-Zuid

Instellen

Meer nieuws in Centrumschil-Zuid

Weten hoe eenvoudig het is om af te vallen? Zonder pillen en smeersels en zonder je in het zweet te werken!
Kijk op eenvoudig-afvallen.nl

© 2012 - 2026 OOZO.nl - info@oozo.nl - Gegevens verwijderen? | Disclaimer | Privacy statement