Woning Prof. Lorentzlaan 49 Zeist

Prof. Lorentzlaan 49, 3701CB Zeist

Ontvang updates voor Centrumschil-Zuid

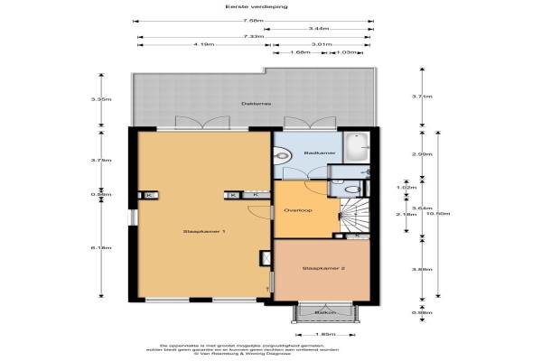
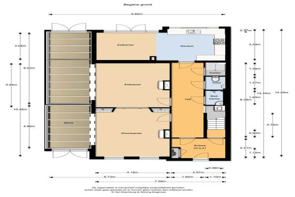
Het adres van deze woning uit 1903 is Prof. Lorentzlaan 49 te Zeist. Het pand heeft een oppervlakte van 278m² en een perceeloppervlakte van 359m² en heeft 9 kamers kamers waarvan 5 slaapkamers. De geschatte waarde van deze woning is € 875.000.

Bekijk alle woningen in Centrumschil-Zuid

Gegevens van Villa, 2-onder-1-kapwoning

Bouwjaar
1903
Geschatte waarde
€ 875.000
Oppervlakte
278 m2
Inhoud
1114 m3
Aantal kamers
9 kamers
Slaapkamers
5
Badkamers
2 badkamers en 2 aparte toiletten
Soort bouw
Bestaande bouw
Eigendomssituatie
Volle eigendom
Ligging
Aan bosrand, in bosrijke omgeving en in woonwijk
Tuin
Achtertuin en voortuin
Achtertuin
100 m² (10m diep en 10m breed)

Voorzieningen in de buurt

Boodschappen0,3 km
Grote supermarkt0,5 km
Cafetaria0,3 km
Restaurant0,3 km
Huisarts0,6 km
Ziekenhuis1,4 km
Kinderdagverblijf0,5 km
BSO0,4 km
Alle voorzieningen in Centrumschil-Zuid

Binnenkijken bij Prof. Lorentzlaan 49 te Zeist

Meer meldingen in deze omgeving

Nieuw bedrijf
November 2025
2e Hogeweg 4, 3701AZ Zeist

Nieuw bedrijf
November 2025
Nooitgedacht 6, 3701AN Zeist

Nieuw bedrijf
November 2025
Prof. Lorentzlaan 18, 3701CC Zeist

Binnenkijken bij
Vrijdag 21-11-2025
Krullelaan 41, 3701TC Zeist

Nieuw bedrijf
November 2025
Krullelaan 36, 3701TD Zeist

112 melding
Donderdag 20-11-2025 om 15:14
Woudenbergseweg, 3701BB Zeist

112 melding
Donderdag 20-11-2025 om 15:14
Woudenbergseweg, 3701BB Zeist

Binnenkijken bij
Dinsdag 18-11-2025
Wilhelminaparkflat 17, 3701BM Zeist

Direct een e-mail ontvangen bij nieuwe meldingen in deze regio?

Meld je dan GRATIS aan voor de Oozo Alert service voor Centrumschil-Zuid

Instellen

Meer nieuws in Centrumschil-Zuid

Weten hoe eenvoudig het is om af te vallen? Zonder pillen en smeersels en zonder je in het zweet te werken!
Kijk op eenvoudig-afvallen.nl

© 2012 - 2025 OOZO.nl - info@oozo.nl - Gegevens verwijderen? | Disclaimer | Privacy statement