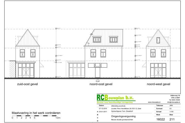
Woning Prins Hendriklaan 29 Zeist

Prins Hendriklaan 29, 3701CL Zeist

Ontvang updates voor Centrumschil-Zuid

Het adres van deze woning uit 1929 is Prins Hendriklaan 29 te Zeist. Het pand heeft een oppervlakte van 91m² en een perceeloppervlakte van 215m² en heeft 3 kamers kamers waarvan 2 slaapkamers. De geschatte waarde van deze woning is € 369.000.

Bekijk alle woningen in Centrumschil-Zuid

Gegevens van Eengezinswoning, geschakelde woning

Bouwjaar
1929
Geschatte waarde
€ 369.000
Oppervlakte
91 m2
Inhoud
300 m3
Aantal kamers
3 kamers
Slaapkamers
2
Badkamers
1 apart toilet
Soort bouw
Bestaande bouw
Eigendomssituatie
Volle eigendom
Ligging
Aan rustige weg, in woonwijk en beschutte ligging
Tuin
Achtertuin en voortuin
Achtertuin
60 m² (8,5m diep en 7m breed)

Voorzieningen in de buurt

Boodschappen0,3 km
Grote supermarkt0,5 km
Cafetaria0,3 km
Restaurant0,3 km
Huisarts0,6 km
Ziekenhuis1,4 km
Kinderdagverblijf0,5 km
BSO0,4 km
Alle voorzieningen in Centrumschil-Zuid

Binnenkijken bij Prins Hendriklaan 29 te Zeist

Meer meldingen in deze omgeving

Nieuw bedrijf
November 2025
2e Hogeweg 4, 3701AZ Zeist

Nieuw bedrijf
November 2025
Nooitgedacht 6, 3701AN Zeist

Nieuw bedrijf
November 2025
Prof. Lorentzlaan 18, 3701CC Zeist

Nieuw bedrijf
November 2025
Krullelaan 36, 3701TD Zeist

Binnenkijken bij
Dinsdag 11-11-2025
Stalhouderij 15, 3701BX Zeist

Binnenkijken bij
Dinsdag 11-11-2025
Nooitgedacht 3, 3701AL Zeist

Binnenkijken bij
Dinsdag 11-11-2025
Huydecoperweg 17C, 3701BP Zeist

Nieuw bedrijf
November 2025
Wilhelminalaan 11, 3701BD Zeist

Direct een e-mail ontvangen bij nieuwe meldingen in deze regio?

Meld je dan GRATIS aan voor de Oozo Alert service voor Centrumschil-Zuid

Instellen

Meer nieuws in Centrumschil-Zuid

Weten hoe eenvoudig het is om af te vallen? Zonder pillen en smeersels en zonder je in het zweet te werken!
Kijk op eenvoudig-afvallen.nl

© 2012 - 2025 OOZO.nl - info@oozo.nl - Gegevens verwijderen? | Disclaimer | Privacy statement