Woning Prins Hendriklaan 30 Zeist

Prins Hendriklaan 30, 3701CP Zeist

Ontvang updates voor Centrumschil-Zuid

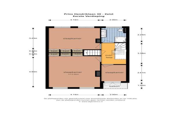
Het adres van deze woning uit 1901 is Prins Hendriklaan 30 te Zeist. Het pand heeft een oppervlakte van 157m² en een perceeloppervlakte van 372m² en heeft 6 kamers kamers waarvan 5 slaapkamers. De geschatte waarde van deze woning is € 885.000.

Bekijk alle woningen in Centrumschil-Zuid

Gegevens van Herenhuis, 2-onder-1-kapwoning

Bouwjaar
1901
Geschatte waarde
€ 885.000
Oppervlakte
157 m2
Inhoud
700 m3
Aantal kamers
6 kamers
Slaapkamers
5
Badkamers
1 badkamer en 1 apart toilet
Soort bouw
Bestaande bouw
Eigendomssituatie
Volle eigendom
Ligging
In centrum, in woonwijk en in bosrijke omgeving
Tuin
Achtertuin, voortuin en zijtuin
Achtertuin
168 m² (14m diep en 12m breed)

Voorzieningen in de buurt

Boodschappen0,3 km
Grote supermarkt0,5 km
Cafetaria0,3 km
Restaurant0,3 km
Huisarts0,6 km
Ziekenhuis1,4 km
Kinderdagverblijf0,5 km
BSO0,4 km
Alle voorzieningen in Centrumschil-Zuid

Binnenkijken bij Prins Hendriklaan 30 te Zeist

Meer meldingen in deze omgeving

112 melding
Zondag 19-4-2026 om 13:47
Jufferstraat, 3701AD Zeist

Nieuw bedrijf
April 2026
Montaubanstraat 1M, 3701HM Zeist

Binnenkijken bij
Maandag 13-4-2026
Wilhelminaparkflat 30, 3701BN Zeist

112 melding
Zondag 12-4-2026 om 07:06
Het Rond, 3701HS Zeist

Binnenkijken bij
Vrijdag 10-4-2026
Bethaniëplein 6, 3701EL Zeist

Nieuw bedrijf
April 2026
Montaubanstraat 1M, 3701HM Zeist

Nieuw bedrijf
April 2026
Montaubanstraat 136, 3701HZ Zeist

Nieuw bedrijf
April 2026
Prof. Lorentzlaan 5, 3701CA Zeist

Direct een e-mail ontvangen bij nieuwe meldingen in deze regio?

Meld je dan GRATIS aan voor de Oozo Alert service voor Centrumschil-Zuid

Instellen

Meer nieuws in Centrumschil-Zuid

Weten hoe eenvoudig het is om af te vallen? Zonder pillen en smeersels en zonder je in het zweet te werken!
Kijk op eenvoudig-afvallen.nl

© 2012 - 2026 OOZO.nl - info@oozo.nl - Gegevens verwijderen? | Disclaimer | Privacy statement