Woning Thorbeckegracht 23 Zwolle

Thorbeckegracht 23, 8011VM Zwolle

Ontvang updates voor Noordereiland

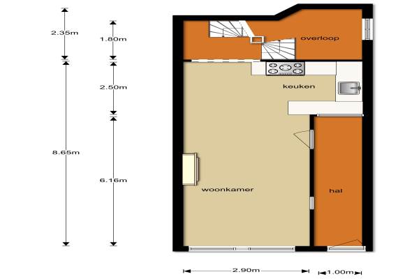
Het adres van deze woning uit 1620 is Thorbeckegracht 23 te Zwolle. Het pand heeft een oppervlakte van 110m² en een perceeloppervlakte van 50m² en heeft 5 kamers kamers waarvan 3 slaapkamers. De geschatte waarde van deze woning is € 409.000.

Bekijk alle woningen in Noordereiland

Gegevens van Herenhuis, geschakelde woning

Bouwjaar
1620
Geschatte waarde
€ 409.000
Oppervlakte
110 m2
Inhoud
485 m3
Aantal kamers
5 kamers
Slaapkamers
3
Badkamers
1 badkamer en 1 apart toilet
Soort bouw
Bestaande bouw
Eigendomssituatie
Volle eigendom
Ligging
Aan water, in centrum, vrij uitzicht en open ligging

Voorzieningen in de buurt

Boodschappen0,1 km
Grote supermarkt0,4 km
Cafetaria0,2 km
Restaurant0,2 km
Huisarts0,7 km
Ziekenhuis2,3 km
Kinderdagverblijf0,8 km
BSO0,8 km
Alle voorzieningen in Noordereiland

Binnenkijken bij Thorbeckegracht 23 te Zwolle

Meer meldingen in deze omgeving

Nieuw bedrijf
Oktober 2025
Menno van Coehoornsingel 16, 8011XA Zwolle

Binnenkijken bij
Woensdag 29-10-2025
Assiesplein 65, 8011XD Zwolle

Binnenkijken bij
Woensdag 29-10-2025
Assiesstraat 10, 8011XT Zwolle

Nieuw bedrijf
Oktober 2025
Menno van Coehoornsingel 16, 8011XA Zwolle

Nieuw bedrijf
Oktober 2025
Kanonsteeg 1A, 8011XJ Zwolle

Binnenkijken bij
Zondag 19-10-2025
Thorbeckegracht 171, 8011VT Zwolle

Binnenkijken bij
Vrijdag 17-10-2025
Friesewal 9A, 8011XE Zwolle

Binnenkijken bij
Zaterdag 11-10-2025
Thorbeckegracht 5B, 8011VL Zwolle

Direct een e-mail ontvangen bij nieuwe meldingen in deze regio?

Meld je dan GRATIS aan voor de Oozo Alert service voor Noordereiland

Instellen

Meer nieuws in Noordereiland

Weten hoe eenvoudig het is om af te vallen? Zonder pillen en smeersels en zonder je in het zweet te werken!
Kijk op eenvoudig-afvallen.nl

© 2012 - 2025 OOZO.nl - info@oozo.nl - Gegevens verwijderen? | Disclaimer | Privacy statement