Woning Akkerbergstraat 35 Zwolle

Akkerbergstraat 35, 8043XG Zwolle

Ontvang updates voor Frankhuis

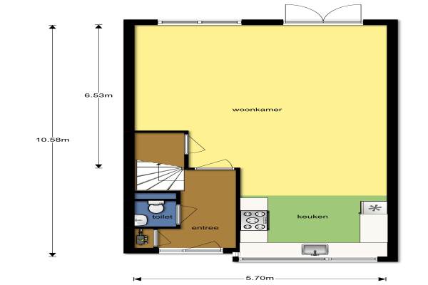
Het adres van deze woning uit 2007 is Akkerbergstraat 35 te Zwolle. Het pand heeft een oppervlakte van 155m² en een perceeloppervlakte van 177m² en heeft 6 kamers kamers waarvan 5 slaapkamers. De geschatte waarde van deze woning is € 315.000.

Bekijk alle woningen in Frankhuis

Gegevens van Eengezinswoning, hoekwoning

Bouwjaar
2007
Geschatte waarde
€ 315.000
Oppervlakte
155 m2
Inhoud
475 m3
Aantal kamers
6 kamers
Slaapkamers
5
Badkamers
1 badkamer en 1 apart toilet
Soort bouw
Bestaande bouw
Eigendomssituatie
Volle eigendom
Ligging
Aan rustige weg, in woonwijk en beschutte ligging
Tuin
Achtertuin en voortuin
Achtertuin
65 m² (10m diep en 6,5m breed)

Voorzieningen in de buurt

Boodschappen1,0 km
Grote supermarkt1,1 km
Cafetaria1,1 km
Restaurant1,1 km
Huisarts1,3 km
Ziekenhuis5,6 km
Kinderdagverblijf0,5 km
BSO0,5 km
Alle voorzieningen in Frankhuis

Binnenkijken bij Akkerbergstraat 35 te Zwolle

Meer meldingen in deze omgeving

Binnenkijken bij
Donderdag 1-1-2026
Twistvlietpad 21, 8043GC Zwolle

Nieuw bedrijf
Januari 2026
Vestingstraat 45, 8043ZX Zwolle

Nieuw bedrijf
Januari 2026
Erfwal 6G, 8043XL Zwolle

Nieuw bedrijf
Januari 2026
Griendstraat 19, 8043VH Zwolle

Nieuw bedrijf
Januari 2026
Akkerbergplein 21, 8043XM Zwolle

Nieuw bedrijf
Januari 2026
Griendstraat 17, 8043VH Zwolle

112 melding
Donderdag 1-1-2026 om 02:09
Vestingstraat, 8043ZX Zwolle

Nieuw bedrijf
December 2025
Hooilandstraat 32, 8043XJ Zwolle

Direct een e-mail ontvangen bij nieuwe meldingen in deze regio?

Meld je dan GRATIS aan voor de Oozo Alert service voor Frankhuis

Instellen

Meer nieuws in Frankhuis

Weten hoe eenvoudig het is om af te vallen? Zonder pillen en smeersels en zonder je in het zweet te werken!
Kijk op eenvoudig-afvallen.nl

© 2012 - 2026 OOZO.nl - info@oozo.nl - Gegevens verwijderen? | Disclaimer | Privacy statement