Woning Twistvlietpad 65 Zwolle

Twistvlietpad 65, 8043HT Zwolle

Ontvang updates voor Frankhuis

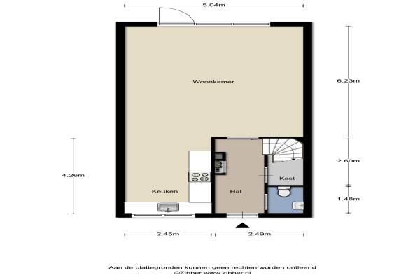
Het adres van deze woning uit 2003 is Twistvlietpad 65 te Zwolle. Het pand heeft een oppervlakte van 125m² en een perceeloppervlakte van 152m² en heeft 5 kamers kamers waarvan 4 slaapkamers. De geschatte waarde van deze woning is € 289.750.

Bekijk alle woningen in Frankhuis

Gegevens van Eengezinswoning, tussenwoning

Bouwjaar
2003
Geschatte waarde
€ 289.750
Oppervlakte
125 m2
Inhoud
385 m3
Aantal kamers
5 kamers
Slaapkamers
4
Soort bouw
Bestaande bouw
Eigendomssituatie
Volle eigendom
Ligging
Aan park, aan rustige weg, in woonwijk en vrij uitzicht
Tuin
Achtertuin en voortuin
Achtertuin
55 m² (11m diep en 5m breed)

Voorzieningen in de buurt

Boodschappen1,0 km
Grote supermarkt1,1 km
Cafetaria1,1 km
Restaurant1,1 km
Huisarts1,3 km
Ziekenhuis5,6 km
Kinderdagverblijf0,5 km
BSO0,5 km
Alle voorzieningen in Frankhuis

Binnenkijken bij Twistvlietpad 65 te Zwolle

Meer meldingen in deze omgeving

Binnenkijken bij
Dinsdag 11-11-2025
Twistvlietpad 77, 8043HT Zwolle

Binnenkijken bij
Dinsdag 11-11-2025
Tolhekstraat 9, 8043VT Zwolle

Binnenkijken bij
Dinsdag 11-11-2025
Frankhuizerallee 190, 8043XB Zwolle

Binnenkijken bij
Dinsdag 11-11-2025
Hasselterdijk 33K, 8043PD Zwolle

Binnenkijken bij
Dinsdag 11-11-2025
Twistvlietpad 103, 8043HT Zwolle

Nieuw bedrijf
November 2025
Tiendschuurstraat 167, 8043XZ Zwolle

112 melding
Woensdag 5-11-2025 om 08:16
Twistvlietpad, Zwolle

112 melding
Woensdag 5-11-2025 om 08:16
Twistvlietpad, Zwolle

Direct een e-mail ontvangen bij nieuwe meldingen in deze regio?

Meld je dan GRATIS aan voor de Oozo Alert service voor Frankhuis

Instellen

Meer nieuws in Frankhuis

Weten hoe eenvoudig het is om af te vallen? Zonder pillen en smeersels en zonder je in het zweet te werken!
Kijk op eenvoudig-afvallen.nl

© 2012 - 2025 OOZO.nl - info@oozo.nl - Gegevens verwijderen? | Disclaimer | Privacy statement