Kantoorruimte Blaak 501- 503 Rotterdam

Blaak 501- 503, 3011GB Rotterdam

Ontvang updates voor Stadsdriehoek

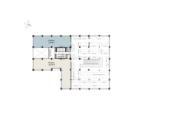
Dit bedrijfspand op het adres Blaak 501- 503 te Rotterdam is geschikt als kantoorruimte. Het betreft hier bestaande bouw . Een energielabel is niet verplicht. Deze kantoorruimte heeft een oppervlakte van 1.700 m² (in units vanaf 175 m²) en bestaat uit 2 bouwlagen.

Bekijk alle bedrijfspanden in Stadsdriehoek

Status bedrijfsobject Kantoorruimte Blaak 501- 503 Rotterdam

Huidige status
Beschikbaar
Aangeboden sinds
26-03-2026
Aanvaarding
In overleg

Eigendom en huurprijs kantoorruimte

Laatst bekende huurprijs
Huurprijs op aanvraag
Servicekosten
Geen servicekosten bekend

Omgeving Kantoorruimte Blaak 501- 503 Rotterdam

Ligging
Stadscentrum/dorpskern en stationslocatie

Indeling en inrichting bedrijfspand

Oppervlakte
1.700 m² (in units vanaf 175 m²)

Voorzieningen in de buurt

Boodschappen0,2 km
Cafetaria0,1 km
Kinderdagverblijf0,4 km
Treinstation0,6 km
Alle voorzieningen in Stadsdriehoek

Binnenkijken bij Blaak 501- 503 te Rotterdam

Meer meldingen in deze omgeving

Nieuw bedrijf
Maart 2026
Noordmolenwerf 43, 3011DC Rotterdam

Nieuw bedrijf
Maart 2026
Posthoornstraat 11, 3011WD Rotterdam

Nieuw bedrijf
Maart 2026
Rodezand 34A, 3011AN Rotterdam

112 melding
Donderdag 26-3-2026 om 23:32
Schiedamsedijk, Rotterdam

112 melding
Donderdag 26-3-2026 om 22:05
Doelwater, 3011AH Rotterdam

112 melding
Donderdag 26-3-2026 om 21:09
Doelwater, 3011AH Rotterdam

112 melding
Donderdag 26-3-2026 om 18:41
Gedempte Zalmhaven, 3011BT Rotterdam

112 melding
Donderdag 26-3-2026 om 14:29
Schiedamsedijk, 3011EM Rotterdam

Direct een e-mail ontvangen bij nieuwe meldingen in deze regio?

Meld je dan GRATIS aan voor de Oozo Alert service voor Stadsdriehoek

Instellen

Meer nieuws in Stadsdriehoek

Weten hoe eenvoudig het is om af te vallen? Zonder pillen en smeersels en zonder je in het zweet te werken!
Kijk op eenvoudig-afvallen.nl

© 2012 - 2026 OOZO.nl - info@oozo.nl - Gegevens verwijderen? | Disclaimer | Privacy statement