Woning Villa Waterranonkel 31 Waalwijk

Villa Waterranonkel 31, 5146AN Waalwijk

Ontvang updates voor Landgoed Driessen

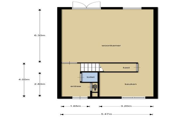
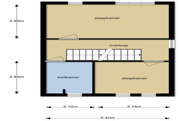
Het adres van deze woning uit 2005 is Villa Waterranonkel 31 te Waalwijk. Het pand heeft een oppervlakte van 145m² en een perceeloppervlakte van 162m² en heeft 5 kamers kamers waarvan 4 slaapkamers. De geschatte waarde van deze woning is € 274.500.

Bekijk alle woningen in Landgoed Driessen

Gegevens van Eengezinswoning, geschakelde woning

Bouwjaar
2005
Geschatte waarde
€ 274.500
Oppervlakte
145 m2
Inhoud
510 m3
Aantal kamers
5 kamers
Slaapkamers
4
Badkamers
1 badkamer en 1 apart toilet
Soort bouw
Bestaande bouw
Eigendomssituatie
Volle eigendom
Tuin
Achtertuin
Achtertuin
M² (0,01m diep en 5,5m breed)

Voorzieningen in de buurt

Boodschappen1,3 km
Grote supermarkt1,3 km
Cafetaria1,9 km
Restaurant1,2 km
Huisarts0,8 km
Ziekenhuis3,2 km
Kinderdagverblijf0,8 km
BSO0,8 km
Alle voorzieningen in Landgoed Driessen

Binnenkijken bij Villa Waterranonkel 31 te Waalwijk

Meer meldingen in deze omgeving

112 melding
Woensdag 10-12-2025 om 18:27
Villa Spaanse Ruiter, Waalwijk

112 melding
Woensdag 10-12-2025 om 16:24
Villa Waterranonkel, 5146AS Waalwijk

112 melding
Woensdag 10-12-2025 om 14:57
De Gaard, Waalwijk

112 melding
Woensdag 10-12-2025 om 13:26
De Gaard, 5146AW Waalwijk

112 melding
Woensdag 10-12-2025 om 13:26
De Gaard, 5146AW Waalwijk

112 melding
Woensdag 10-12-2025 om 09:20
Wielrenner, Waalwijk

Nieuw bedrijf
December 2025
Calèche 8, 5146BG Waalwijk

Nieuw bedrijf
December 2025
Het Fort 106, 5146CK Waalwijk

Direct een e-mail ontvangen bij nieuwe meldingen in deze regio?

Meld je dan GRATIS aan voor de Oozo Alert service voor Landgoed Driessen

Instellen

Meer nieuws in Landgoed Driessen

Weten hoe eenvoudig het is om af te vallen? Zonder pillen en smeersels en zonder je in het zweet te werken!
Kijk op eenvoudig-afvallen.nl

© 2012 - 2025 OOZO.nl - info@oozo.nl - Gegevens verwijderen? | Disclaimer | Privacy statement