Woning Wolweverstraat 12B Zwolle

Wolweverstraat 12B, 8011NW Zwolle

Ontvang updates voor Binnenstad-Zuid

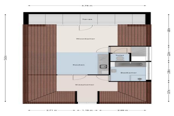
Het adres van deze woning uit 1910 is Wolweverstraat 12B te Zwolle. Het pand heeft een oppervlakte van 40m² en heeft 2 kamers kamers waarvan 1 slaapkamers. De geschatte waarde van deze woning is € 249.000.

Bekijk alle woningen in Binnenstad-Zuid

Gegevens van Portiekflat (appartement)

Bouwjaar
1910
Geschatte waarde
€ 249.000
Oppervlakte
40 m2
Inhoud
130 m3
Aantal kamers
2 kamers
Slaapkamers
1
Badkamers
1 badkamer en 1 apart toilet
Soort bouw
Bestaande bouw
Eigendomssituatie
Volle eigendom
Ligging
Aan rustige weg en in centrum

Voorzieningen in de buurt

Boodschappen0,1 km
Grote supermarkt0,3 km
Cafetaria0,1 km
Restaurant0,1 km
Huisarts0,5 km
Ziekenhuis2,7 km
Kinderdagverblijf0,5 km
BSO0,8 km
Alle voorzieningen in Binnenstad-Zuid

Binnenkijken bij Wolweverstraat 12B te Zwolle

Meer meldingen in deze omgeving

Binnenkijken bij
Donderdag 2-10-2025
Papendwarsstraat 10, 8011PM Zwolle

Binnenkijken bij
Woensdag 1-10-2025
Ossenmarkt 6A, 8011MR Zwolle

Onroerend goed
Dinsdag 30-9-2025
Kamperstraat 17, 8011LJ Zwolle

Binnenkijken bij
Vrijdag 26-9-2025
Nieuwe Markt 1D, 8011PE Zwolle

112 melding
Maandag 22-9-2025 om 15:39
Koestraat, Zwolle

112 melding
Maandag 22-9-2025 om 15:39
Koestraat, Zwolle

112 melding
Woensdag 17-9-2025 om 11:55
Grote Kerkplein, 8011PK Zwolle

Onroerend goed
Dinsdag 16-9-2025
Ossenmarkt 7- 8, 8011MR Zwolle

Direct een e-mail ontvangen bij nieuwe meldingen in deze regio?

Meld je dan GRATIS aan voor de Oozo Alert service voor Binnenstad-Zuid

Instellen

Meer nieuws in Binnenstad-Zuid

Weten hoe eenvoudig het is om af te vallen? Zonder pillen en smeersels en zonder je in het zweet te werken!
Kijk op eenvoudig-afvallen.nl

© 2012 - 2025 OOZO.nl - info@oozo.nl - Gegevens verwijderen? | Disclaimer | Privacy statement