Woning Wulphof 37 Zwolle

Wulphof 37, 8043JT Zwolle

Ontvang updates voor Milligen

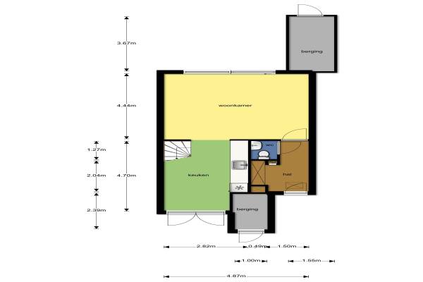
Het adres van deze woning uit 1999 is Wulphof 37 te Zwolle. Het pand heeft een oppervlakte van 91m² en een perceeloppervlakte van 158m² en heeft 4 kamers kamers waarvan 3 slaapkamers. De geschatte waarde van deze woning is € 215.000.

Bekijk alle woningen in Milligen

Gegevens van Eengezinswoning, tussenwoning

Bouwjaar
1999
Geschatte waarde
€ 215.000
Oppervlakte
91 m2
Inhoud
300 m3
Aantal kamers
4 kamers
Slaapkamers
3
Badkamers
1 badkamer en 1 apart toilet
Soort bouw
Bestaande bouw
Eigendomssituatie
Volle eigendom
Ligging
Aan rustige weg, in woonwijk en beschutte ligging
Tuin
Achtertuin en voortuin
Achtertuin
75 m² (15m diep en 5m breed)

Voorzieningen in de buurt

Boodschappen0,9 km
Grote supermarkt0,9 km
Cafetaria0,9 km
Restaurant0,6 km
Huisarts0,8 km
Ziekenhuis6,4 km
Kinderdagverblijf0,4 km
BSO0,5 km
Alle voorzieningen in Milligen

Binnenkijken bij Wulphof 37 te Zwolle

Meer meldingen in deze omgeving

Binnenkijken bij
Donderdag 30-10-2025
Bermzegge 6, 8043KT Zwolle

Nieuw bedrijf
Oktober 2025
Werkerlaan 147, 8043LV Zwolle

Nieuw bedrijf
Oktober 2025
Zwanenbloem 42, 8043NG Zwolle

Binnenkijken bij
Woensdag 29-10-2025
Kleimos 42, 8043MC Zwolle

Binnenkijken bij
Woensdag 29-10-2025
Snavelzegge 13, 8043LG Zwolle

112 melding
Zondag 26-10-2025 om 13:56
Zwanenbloem, Zwolle

Binnenkijken bij
Zondag 19-10-2025
Werkerlaan 79, 8043LT Zwolle

112 melding
Donderdag 16-10-2025 om 19:34
Werkerlaan, Zwolle

Direct een e-mail ontvangen bij nieuwe meldingen in deze regio?

Meld je dan GRATIS aan voor de Oozo Alert service voor Milligen

Instellen

Meer nieuws in Milligen

Weten hoe eenvoudig het is om af te vallen? Zonder pillen en smeersels en zonder je in het zweet te werken!
Kijk op eenvoudig-afvallen.nl

© 2012 - 2025 OOZO.nl - info@oozo.nl - Gegevens verwijderen? | Disclaimer | Privacy statement